Italiano
English
Español
العربية
501.600 €

Condominio a Cassano Magnago (VA)

Stabile / Palazzo in vendita • Cassano Magnago - A. Colombo 0
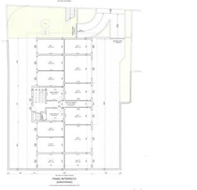
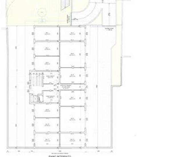
Condominio situato a Cassano Magnago (VA), si presenta allo stato rustico e precisamente struttura in cemento armato composta da sei piani fuori terra e uno interrato, con vano scala interno e vano ascensore.



22REB è a disposizione per valutare come la nostra esperienza potrà favorirti nel realizzare il tuo miglior investimento.


L'immobile è oggetto di vendita giudiziaria.

22REB non si occupa di attività di intermediazione imm. di cui alla legge 39/89.
 Per motivi di privacy la foto dell'immobile/terreno è indicativa ma non esaustiva.
Caratteristiche principali
Codice
GF212/25
Città
Cassano Magnago
Categoria
Stabile / Palazzo
Prezzo
501.600 €
Locali
1
Mq
1117
Classe energetica
In fase di valutazione
Mappa
A. Colombo 0 , Cassano Magnago (VA)
Condividi su
Cookie preference