Italiano
English
Español
العربية
73.500 €

Casa singola a Portomaggiore (FE)

Casa singola in vendita • Portomaggiore - Via Eugenio Curiel
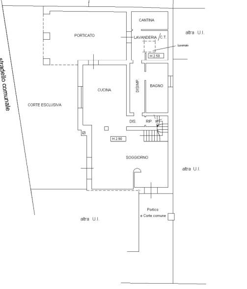
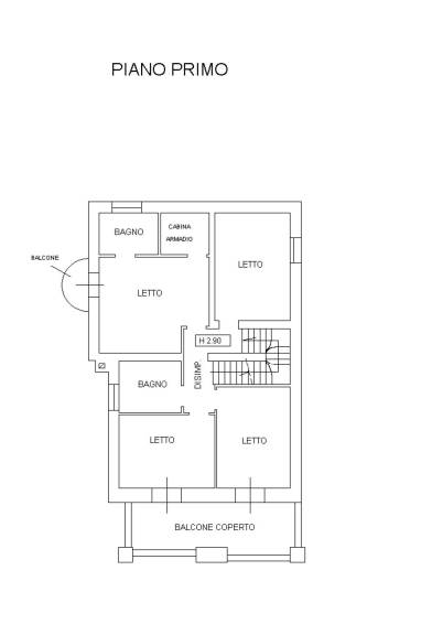
Casa singola al piano terra, primo e sottotetto con pertinenziale autorimessa doppia e corti esclusive antistanti e retrostante. Composta al piano terra da un ingresso con ampio soggiorno con uscita su corte laterale; ampia cucina con uscita su porticato, un bagno, una lavanderia e cantina. Al piano primo da un disimpegno, tre camere doppie due delle quali con accesso su balconata, un bagno, una camera matrimoniale con bagno esclusivo, cabina armadio e balconcino. Al secondo (sottotetto) una stanza mansardata con un bagno e uscita su terrazza.


22REB è a disposizione per valutare come la nostra esperienza potrà favorirti nel realizzare il tuo miglior investimento.


L'immobile è oggetto di vendita giudiziaria.

22REB non si occupa di attività di intermediazione imm. di cui alla legge 39/89.
Per motivi di privacy la foto dell'immobile/terreno è indicativa ma non esaustiva.
Caratteristiche principali
Codice
AZ04/2024
Città
Portomaggiore
Categoria
Casa singola
Prezzo
73.500 €
Locali
12
Bagni
4
Mq
286
Box
1
Mq Box
54
Balconi
2
Terrazzi
1
Classe energetica
In fase di valutazione
Mappa
Via Eugenio Curiel , Portomaggiore (FE)
Condividi su
Cookie preference