Italiano
English
Español
العربية
146.423 €

Bifamiliare su 3 livelli a San Cesareo

Appartamento in vendita • San Cesareo - Via Colle della Castagna
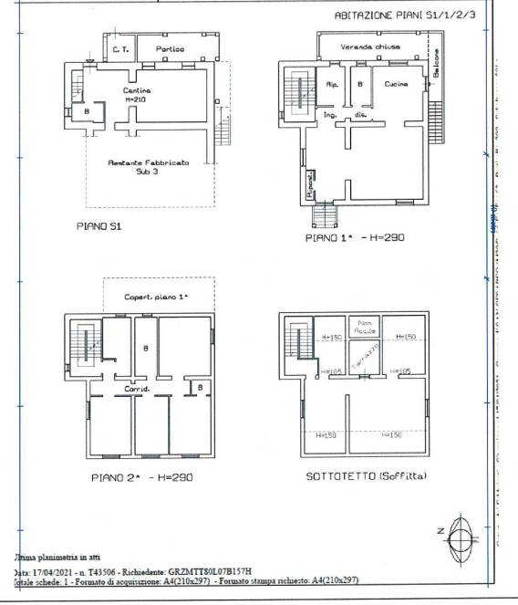
Proponiamo in asta un ampio appartamento situato nel comune di San Cesareo (RM), Italia. L'immobile, con una superficie di 580mq distribuita su 12 vani, offre spazi generosi e ben distribuiti.

22 REB opera a livello internazionale e mette a tua disposizione professionisti specializzati nel mondo delle aste immobiliari, con assistenza legale qualificata durante l’intera procedura.

Grazie al nostro broker partner è possibile valutare mutui e finanziamenti anche per acquisti all’asta.

Filiali operative: Treviso • Padova • Vicenza • Bassano del Grappa • Roma • Bergamo – prenota un appuntamento informativo per scoprire come funziona il settore delle aste immobiliari.

In ufficio potrai inoltre accedere a opportunità immobiliari riservate, parte di un portafoglio di immobili non pubblicati sui portali o di prossima uscita.

L’immobile è oggetto di vendita giudiziaria.

22REB non svolge attività di intermediazione immobiliare ai sensi della Legge 39/89. Le immagini sono indicative e non necessariamente rappresentative del bene.
Caratteristiche principali
Codice
GC133/26
Città
San Cesareo
Categoria
Appartamento
Prezzo
146.423 €
Locali
12
Mq
580
Mq Giardino
2580
Classe energetica
Non applicabile
Mappa
Via Colle della Castagna , San Cesareo (RM)
Condividi su
Cookie preference