Italiano
English
Español
العربية
61.392 €

Appartamento a Belluno (BL)

Appartamento in vendita • Belluno - Via Agordo
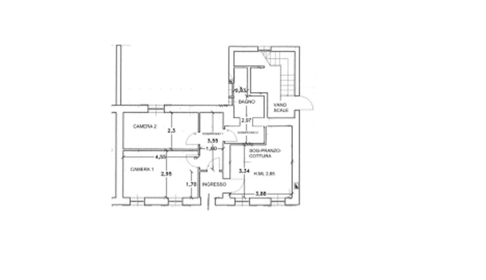
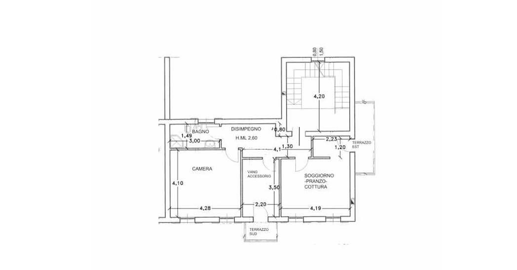
Abitazione con giardino composta da tre piani situata a Belluno (BL), composta internamente da un ingresso, un soggiorno, una sala da pranzo e un disimpegno, due camere da letto e un bagno. Al primo piano troviamo un disimpegno, un ulteriore soggiorno/pranzo, due camere da letto e due terrazzi. Sono di pertinenza una soffitta e un piano interrato.


22REB è a disposizione per valutare come la nostra esperienza potrà favorirti nel realizzare il tuo miglior investimento.


L'immobile è oggetto di vendita giudiziaria.

22REB non si occupa di attività di intermediazione imm. di cui alla legge 39/89.
 Per motivi di privacy la foto dell'immobile/terreno è indicativa ma non esaustiva.
Caratteristiche principali
Codice
GF149/25
Città
Belluno
Categoria
Appartamento
Prezzo
61.392 €
Locali
1
Camere
4
Bagni
3
Mq
770
Classe energetica
In fase di valutazione
Mappa
Via Agordo , Belluno (BL)
Condividi su
Cookie preference