Italiano
English
Español
العربية
84.375 €

Appartamento a Riccione (RN)

Appartamento in vendita • Riccione - via flaminia
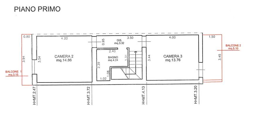
Appartamento situato a Riccione (RN), internamente si compone di un soggiorno, una cucina, tre camere da letto, due bagni, un ampia loggia, due balconi e un terrazzo.



22REB è a disposizione per valutare come la nostra esperienza potrà favorirti nel realizzare il tuo miglior investimento.


L'immobile è oggetto di vendita giudiziaria.

22REB non si occupa di attività di intermediazione imm. di cui alla legge 39/89.
 Per motivi di privacy la foto dell'immobile/terreno è indicativa ma non esaustiva.
Caratteristiche principali
Codice
GF284/25
Città
Riccione
Categoria
Appartamento
Prezzo
84.375 €
Locali
4
Camere
3
Bagni
2
Mq
84
Classe energetica
In fase di valutazione
Mappa
via flaminia , Riccione (RN)
Condividi su
Cookie preference