Italiano
English
Español
العربية
229.800 €

Villa a Santa Lucia di Piave (TV)

Villa in vendita • Santa Lucia di Piave - Via ungheresca
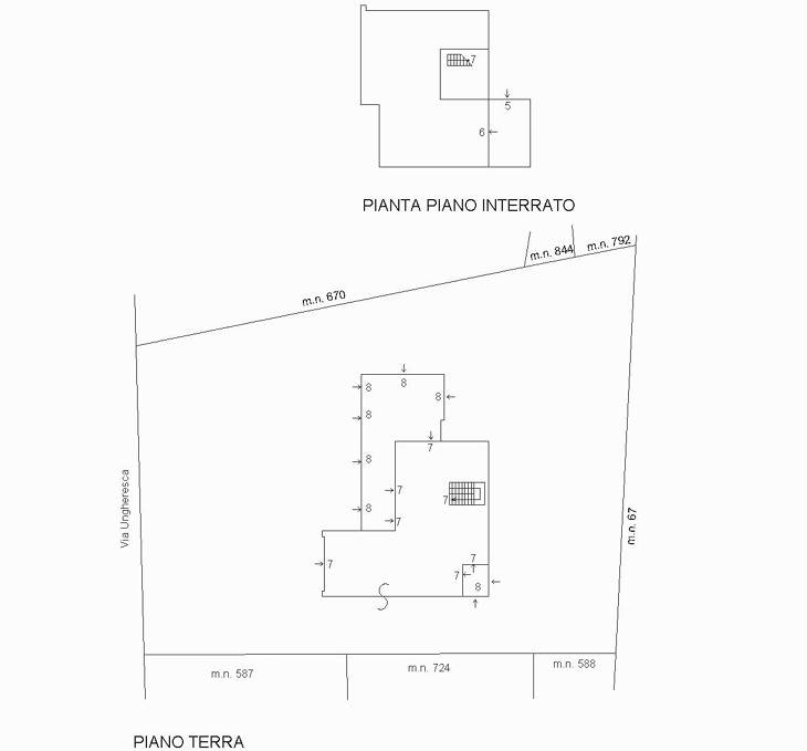
Villa situata a Santa Lucia di Piave (TV), di pertinenza anche depositi, ripostiglio e un terreno agricolo di 6.362mq. L'abitazione internamente si compone di un soggiorno, una cucina, una sala da pranzo, una centrale termica, una lavanderia, due ripostigli, un bagno. Al primo piano troviamo cinque camere da letto di cui due con bagno e guardaroba, un ulteriore bagno e una terrazza. Al piano secondo troviamo un disimpegno e una soffitta. Al piano interrato trova posto un bagno , un garage e due depositi.





22REB è a disposizione per valutare come la nostra esperienza potrà favorirti nel realizzare il tuo miglior investimento.


L'immobile è oggetto di vendita giudiziaria.

22REB non si occupa di attività di intermediazione imm. di cui alla legge 39/89.
 Per motivi di privacy la foto dell'immobile/terreno è indicativa ma non esaustiva.
Caratteristiche principali
Codice
GF376/25
Città
Santa Lucia di Piave
Categoria
Villa
Prezzo
229.800 €
Locali
14,5
Camere
5
Bagni
3
Mq
361
Box
1
Terrazzi
2
Classe energetica
In fase di valutazione
Mappa
Via ungheresca , Santa Lucia di Piave (TV)
Condividi su
Cookie preference