Italiano
English
Español
العربية
1.256.250 €

Albergo a Gorizia (GO)

Hotel in vendita • Gorizia - Via Trieste
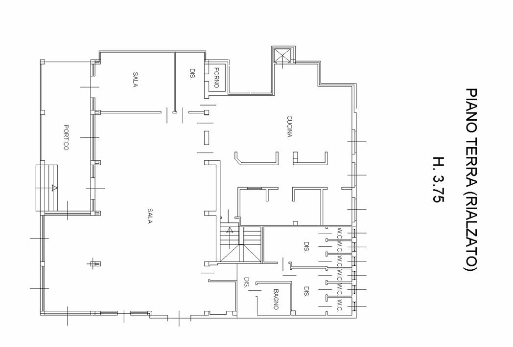
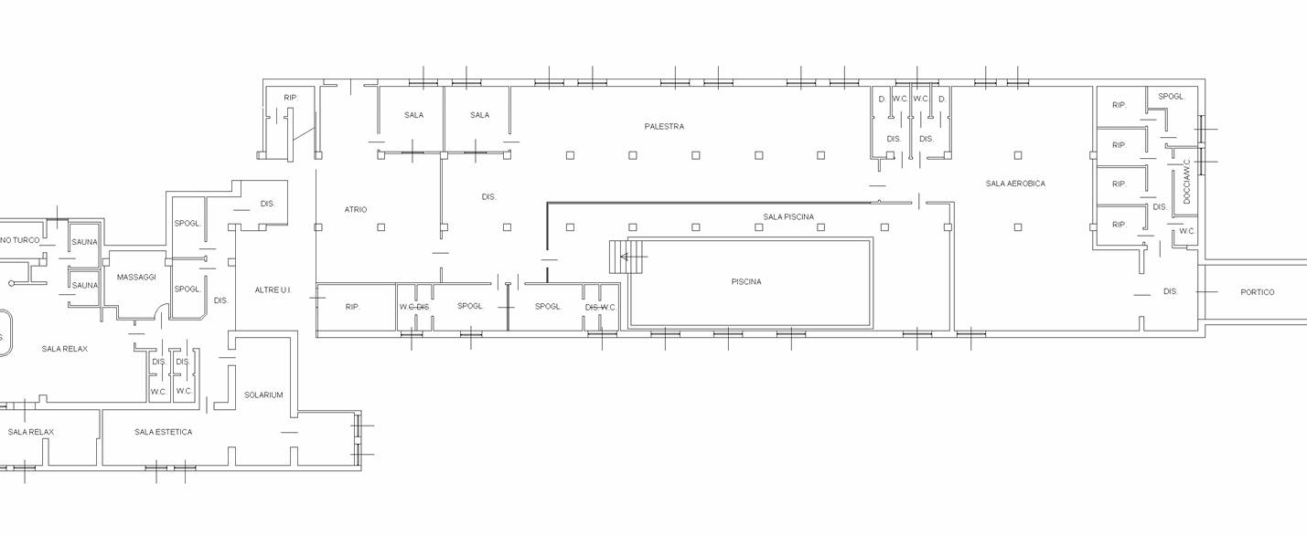
Albergo 3 stelle situato a Gorizia (GO), comprende anche un ristorante, un bar, una piscina e una palestra per fitness e wellness. Il ristorante-bar si trova al piano terra e rialzato, con cucina, ampia sala da pranzo
e un portico esterno. L'albergo invece dispone di 49 stanze da letto
per complessivi 97 posti letto, con a disposizione locali di servizio ed accessori a servizio delle unità condominiali del complesso edilizio. L'area esterna è destinata a 121 posti auto con un ampia zona di manovra ed un area destinata a giardino.


22REB è a disposizione per valutare come la nostra esperienza potrà favorirti nel realizzare il tuo miglior investimento.


L'immobile è oggetto di vendita giudiziaria.

22REB non si occupa di attività di intermediazione imm. di cui alla legge 39/89.
 Per motivi di privacy la foto dell'immobile/terreno è indicativa ma non esaustiva.
Caratteristiche principali
Codice
GF455/25
Città
Gorizia
Categoria
Hotel
Prezzo
1.256.250 €
Locali
1
Camere
49
Mq
5128
Posti auto
99
Classe energetica
In fase di valutazione
Mappa
Via Trieste , Gorizia (GO)
Condividi su
Cookie preference