Italiano
English
Español
العربية
652.500 €

Villa a Corbetta (MI)

Villa in vendita • Corbetta - Via N. Sauro
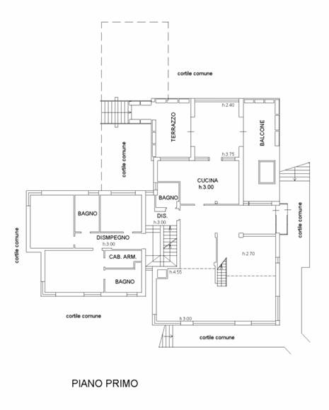
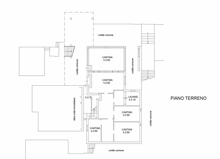
Lotto composto da due abitazioni in villini con annesse due autorimesse situate a Corbetta (MI), la prima villa ha una superficie di 460mq ed è formata da: un ingresso, una ampia zona giorno con soggiorno, pranzo e cucina, troviamo poi le prime due camere da letto con due bagni e una stanza di servizio. Al livello superiore è prevista una ulteriore camera da letto con il suo bagno e due terrazzini. Il livello seminterrato è utilizzato per funzioni di servizio all’attività ricettiva, tra cui una zona per la gestione amministrativa tipo ufficio e una piccola palestra privata; sono altresì presenti una camera e un bagno, oltre che una lavanderia e
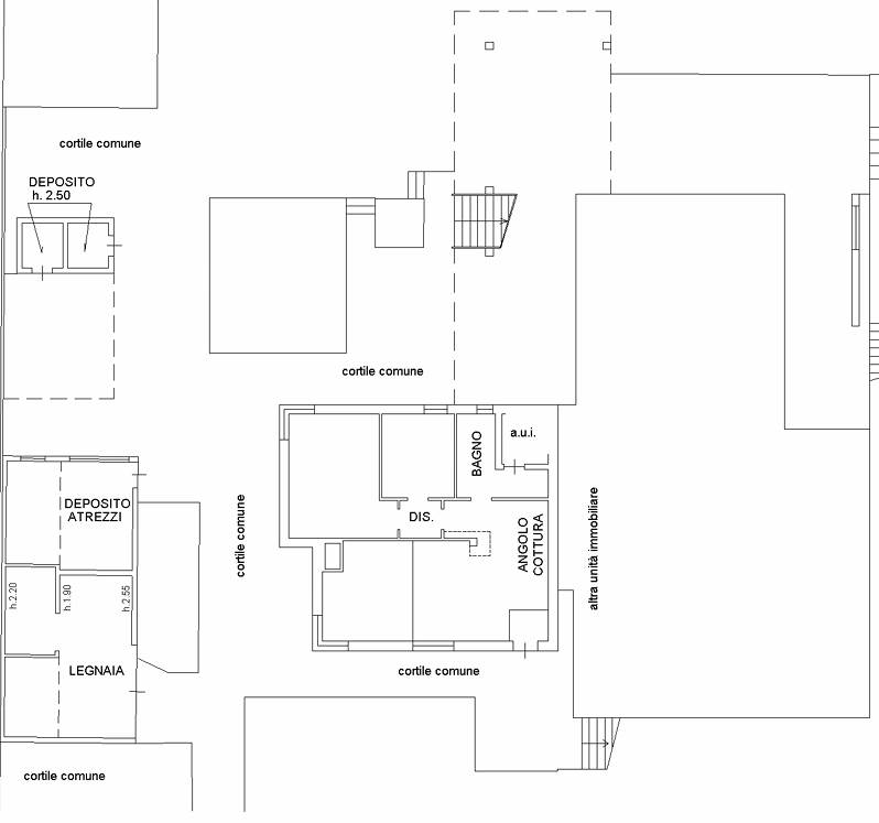
alcuni spazi di sgombero e magazzino. La seconda villa ha una superficie di 106mq ed attorno al fabbricato le aree esterne sono in parte pavimentate e in parte a vedere e comprendono anche una piscina all’aperto.
E' presente un contratto di affitto registrato con scadenza 2026 per quanto riguarda la prima villa.



22REB è a disposizione per valutare come la nostra esperienza potrà favorirti nel realizzare il tuo miglior investimento.


L'immobile è oggetto di vendita giudiziaria.

22REB non si occupa di attività di intermediazione imm. di cui alla legge 39/89.
 Per motivi di privacy la foto dell'immobile/terreno è indicativa ma non esaustiva.
Caratteristiche principali
Codice
GF474/25
Città
Corbetta
Categoria
Villa
Prezzo
652.500 €
Locali
17
Mq
469
Classe energetica
In fase di valutazione

Accessori: Antifurto, Aria Condizionata, Armadio a Muro, Bagno Handicap, Cancello Elettrico

Mappa
Via N. Sauro , Corbetta (MI)
Condividi su
Cookie preference