Italiano
English
Español
العربية
6.155.000 €

Albergo a Roma (RM)

Hotel in vendita • Roma - Via Monterosi
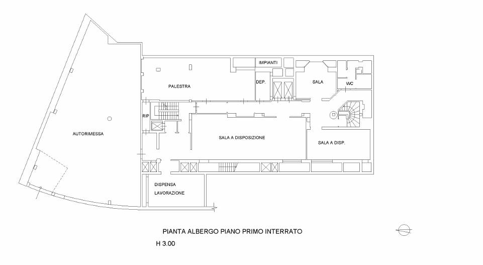
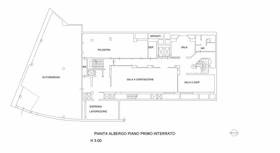
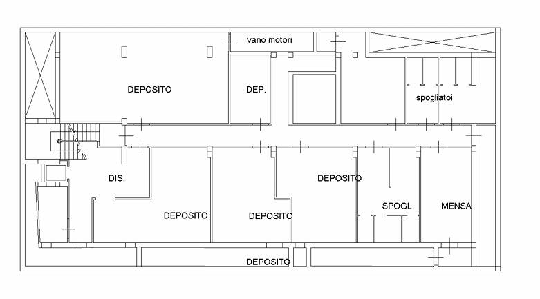
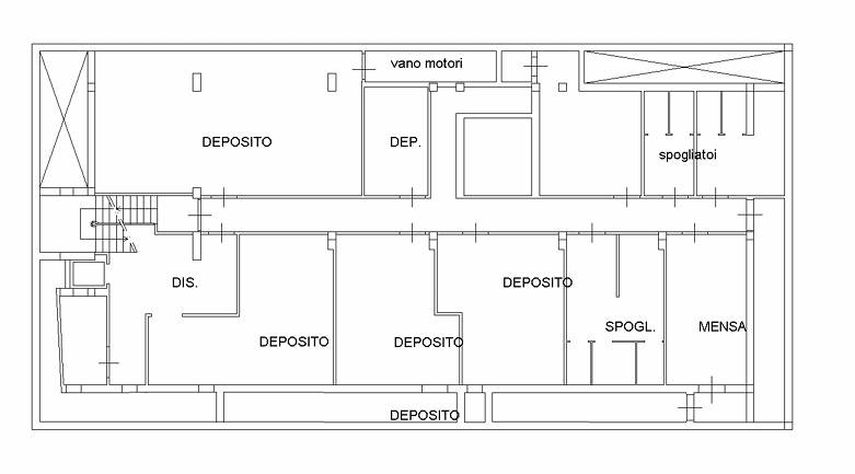
Albergo situato a Roma(RM), la sua ubicazione è agevolata dalla presenza di infrastrutture ben sviluppate, come la vicinanza alla stazione ferroviaria di Vigna Clara, l'accesso alla Tangenziale Est e l’asse di Corso Francia, oltre che dei collegamenti del trasporto pubblico (autobus), facilita gli spostamenti verso il centro di Roma e le altre aree zone strategiche della città (stadio Olimpico, Auditorium Parco della Musica, Maxxi,…). E' dunque collocato in un ambiente esclusivo e riservato lontano dal caos del centro cittadino ma allo stesso tempo ben collegato alle principali attrazioni di Roma, alle istituzioni culturali e accademiche, ma soprattutto al complesso del Foro Italico, sede di numerosissimi eventi sportivi. Il fabbricato, di forma rettangolare e con struttura in cemento armato, è formato da otto piani fuori
terra, due piani interrati e un piano copertura, e comprende oltre alle 73 camere, un ristorante, un bar, sale comuni, sale riunioni, una palestra, alcuni depositi e un’autorimessa.


22REB è a disposizione per valutare come la nostra esperienza potrà favorirti nel realizzare il tuo miglior investimento.


L'immobile è oggetto di vendita giudiziaria.

22REB non si occupa di attività di intermediazione imm. di cui alla legge 39/89.
 Per motivi di privacy la foto dell'immobile/terreno è indicativa ma non esaustiva.
Caratteristiche principali
Codice
GF481/25
Città
Roma
Categoria
Hotel
Prezzo
6.155.000 €
Locali
1
Camere
73
Mq
4000
Classe energetica
In fase di valutazione
Mappa
Via Monterosi , Roma (RM)
Condividi su
Cookie preference