Italiano
English
Español
العربية
405.000 €

Laboratorio a Granarolo (BO)

Capannone in vendita • Granarolo dell'Emilia - via San Donato
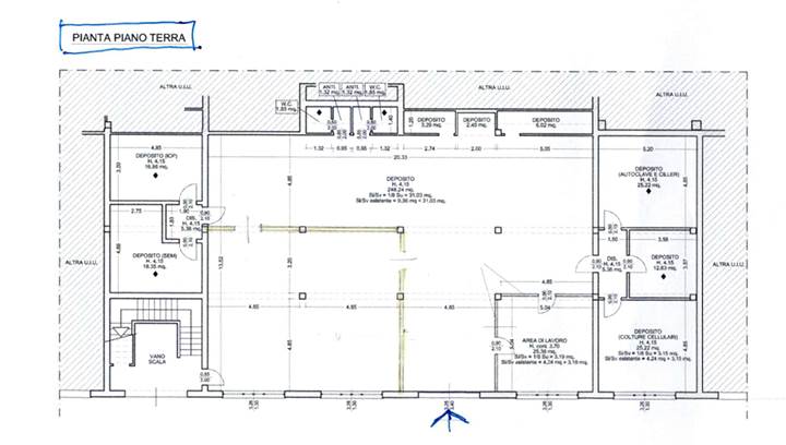
Capannone artigianale con uffici situato a Granarolo dell'Emilia (BO), il fabbricato è costituito da due unità adiacenti ed indipendenti tra loro. La prima al piano terra presenta un ampio locale deposito e sei locali adibiti a laboratori, oltre a due vani bagni. L’altra unità immobiliare è posta al piano primo, vi si accede mediante un ingresso su vano scala diretto ed autonomo, è costituito da otto uffici, cinque laboratori, tre locali deposito, tre bagni ed un locale pluriuso.


22REB è a disposizione per valutare come la nostra esperienza potrà favorirti nel realizzare il tuo miglior investimento.


L'immobile è oggetto di vendita giudiziaria.

22REB non si occupa di attività di intermediazione imm. di cui alla legge 39/89.
 Per motivi di privacy la foto dell'immobile/terreno è indicativa ma non esaustiva.
Caratteristiche principali
Codice
GF498/25
Città
Granarolo dell'Emilia
Categoria
Capannone
Prezzo
405.000 €
Locali
1
Mq
1163
Classe energetica
In fase di valutazione
Mappa
via San Donato , Granarolo dell'Emilia (BO)
Condividi su
Cookie preference