Italiano
English
Español
العربية
615.900 €

Capannone a Grosseto (GR)

Capannone in vendita • Grosseto - Via Siria
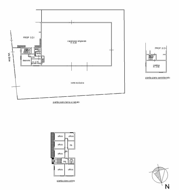
Capannone artigianale con appartamento e uffici situato a Grosseto (GR),
il capannone ha una superficie di 951mq, seguono poi l'appartamento di 168mq e l'area direzionale di 184mq. Il fabbricato dispone di un'area esterna da destinare a piacimento tra area stoccaggio o verde.


22REB è a disposizione per valutare come la nostra esperienza potrà favorirti nel realizzare il tuo miglior investimento.


L'immobile è oggetto di vendita giudiziaria.

22REB non si occupa di attività di intermediazione imm. di cui alla legge 39/89.
 Per motivi di privacy la foto dell'immobile/terreno è indicativa ma non esaustiva.
Caratteristiche principali
Codice
GF503/25
Città
Grosseto
Categoria
Capannone
Prezzo
615.900 €
Locali
1
Mq
1303
Classe energetica
In fase di valutazione
Mappa
Via Siria , Grosseto (GR)
Condividi su
Cookie preference