Italiano
English
Español
العربية
648.206 €

Hotel a Comano Terme (TN)

Hotel in vendita • Comano Terme - Via G. Marconi
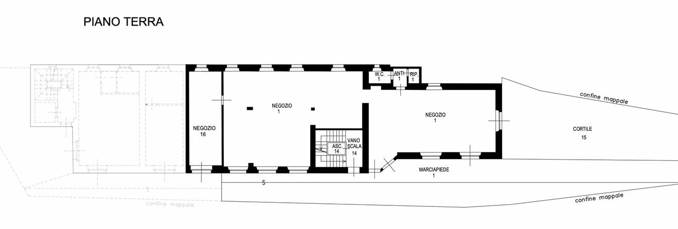
Struttura ricettiva situata a Comano Terme (TN), dispone di 23 stanze ed un alloggio per il custode, di pertinenza anche un negozio.


22REB è a disposizione per valutare come la nostra esperienza potrà favorirti nel realizzare il tuo miglior investimento.


L'immobile è oggetto di vendita giudiziaria.

22REB non si occupa di attività di intermediazione imm. di cui alla legge 39/89.
 Per motivi di privacy la foto dell'immobile/terreno è indicativa ma non esaustiva.
Caratteristiche principali
Codice
GF557/25
Città
Comano Terme
Categoria
Hotel
Prezzo
648.206 €
Locali
1
Camere
23
Mq
1204
Classe energetica
In fase di valutazione

Accessori: Ascensore

Mappa
Via G. Marconi , Comano Terme (TN)
Condividi su
Cookie preference