Italiano
English
Español
العربية
358.001 €

Castello a Montaione (FI)

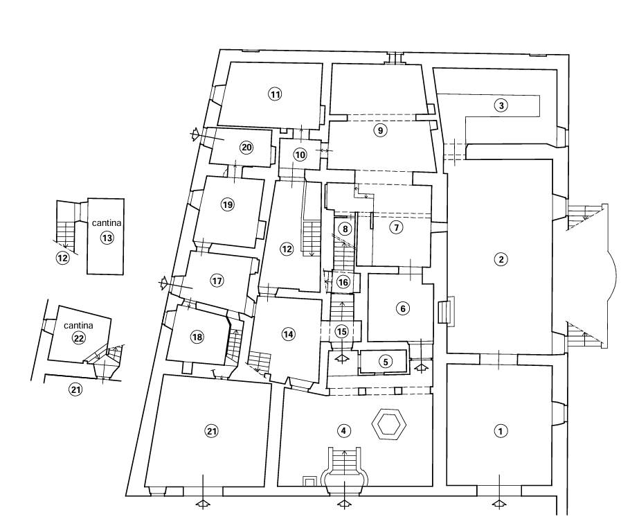
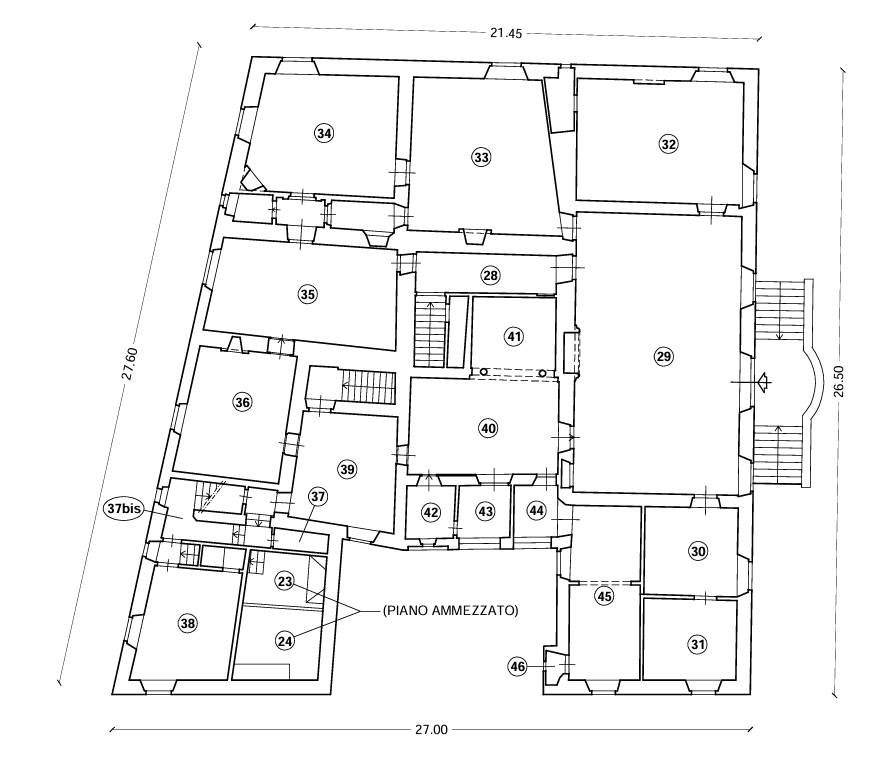
Castello in vendita • Montaione - via poggio All'Aglione
Castello situato a Montaione (FI), il bene è situato su di un leggero declivio orientato ad Est verso Ovest, vi si accede tramite un ingresso marcato da due coppie di alti cippi in muratura ed il seguente viale alberato di tigli. Sui lati Nord, Ovest e Sud-Ovest si estende un parco all’interno del quale troviamo la Cappella e la vasca-peschiera. Sul lato Sud della Villa si trovano il Ninfeo, la piscina ed un’ampia terrazza.


22REB è a disposizione per valutare come la nostra esperienza potrà favorirti nel realizzare il tuo miglior investimento.


L'immobile è oggetto di vendita giudiziaria.

22REB non si occupa di attività di intermediazione imm. di cui alla legge 39/89.
 Per motivi di privacy la foto dell'immobile/terreno è indicativa ma non esaustiva.
Caratteristiche principali
Codice
GF590/25
Città
Montaione
Categoria
Castello
Prezzo
358.001 €
Locali
1
Mq
794
Classe energetica
In fase di valutazione

Accessori: Ascensore

Mappa
via poggio All'Aglione , Montaione (FI)
Condividi su
Cookie preference