Italiano
English
Español
العربية
975.000 €

Negozio a Zevio (VR)

Negozio in vendita • Zevio - Via saturno
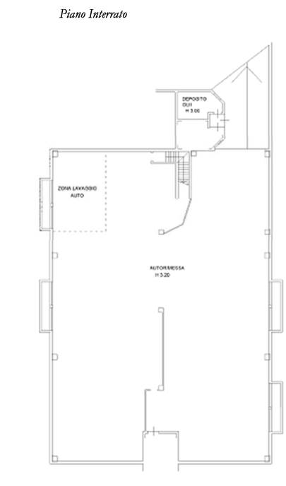
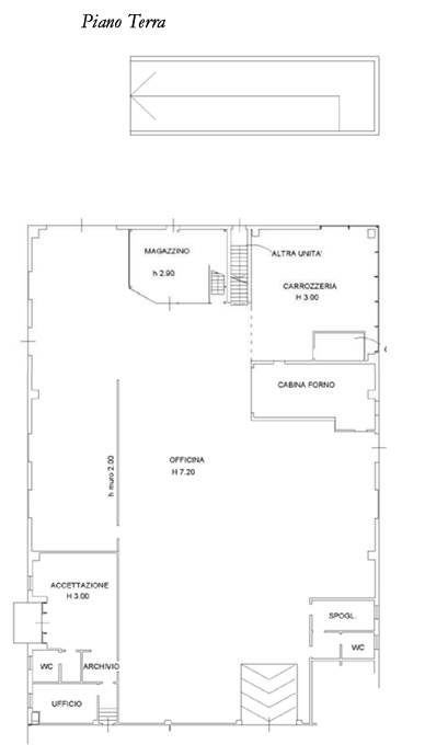
Concessionaria situata a Zevio (VR), l'edificio industriale trova posto all'interno di un ampio lotto, il fabbricato oltre all'area espositiva per le automobili dispone di un'area dedicata all'officina, un'area uffici e l'area esterna utilizzata come parco auto.


22REB è a disposizione per valutare come la nostra esperienza potrà favorirti nel realizzare il tuo miglior investimento.


L'immobile è oggetto di vendita giudiziaria.

22REB non si occupa di attività di intermediazione imm. di cui alla legge 39/89.
 Per motivi di privacy la foto dell'immobile/terreno è indicativa ma non esaustiva.
Caratteristiche principali
Codice
GF602/26
Città
Zevio
Categoria
Negozio
Prezzo
975.000 €
Locali
1
Mq
2654
Classe energetica
In fase di valutazione

Accessori: Ascensore

Mappa
Via saturno , Zevio (VR)
Condividi su
Cookie preference