Italiano
English
Español
العربية
1.006.370 €

Villa a Mapello (BG)

Villa in vendita • Mapello - via Guglielmo Marconi
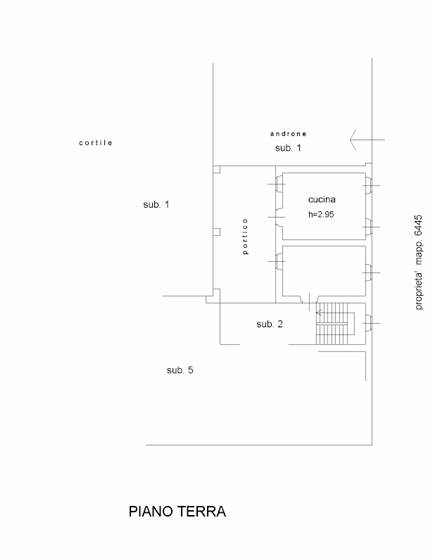
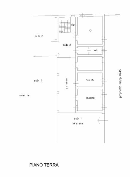
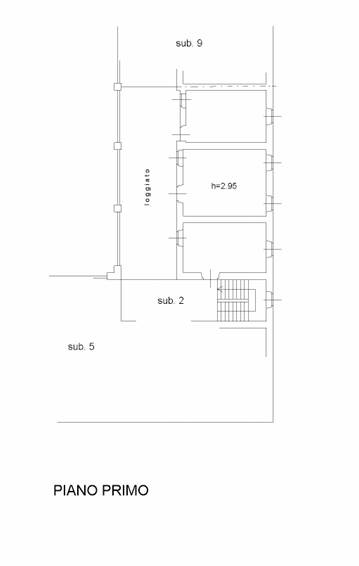
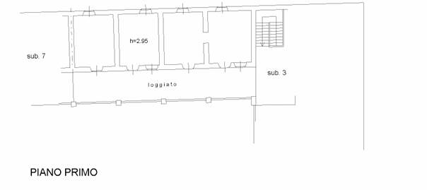
Villa barocca settecentesca situata a Mapello (BG), collocata all'interno di un parco verde e arricchita da affreschi di pregio al suo interno. A servizio della villa troviamo una portineria e ampi terreni agricoli.


22REB è a disposizione per valutare come la nostra esperienza potrà favorirti nel realizzare il tuo miglior investimento.


L'immobile è oggetto di vendita giudiziaria.

22REB non si occupa di attività di intermediazione imm. di cui alla legge 39/89.
 Per motivi di privacy la foto dell'immobile/terreno è indicativa ma non esaustiva.
Caratteristiche principali
Codice
GF625/26
Città
Mapello
Categoria
Villa
Prezzo
1.006.370 €
Locali
53,5
Mq
1875
Classe energetica
In fase di valutazione

Accessori: Ascensore

Mappa
via Guglielmo Marconi , Mapello (BG)
Condividi su
Cookie preference