Italiano
English
Español
العربية
1.625.574 €

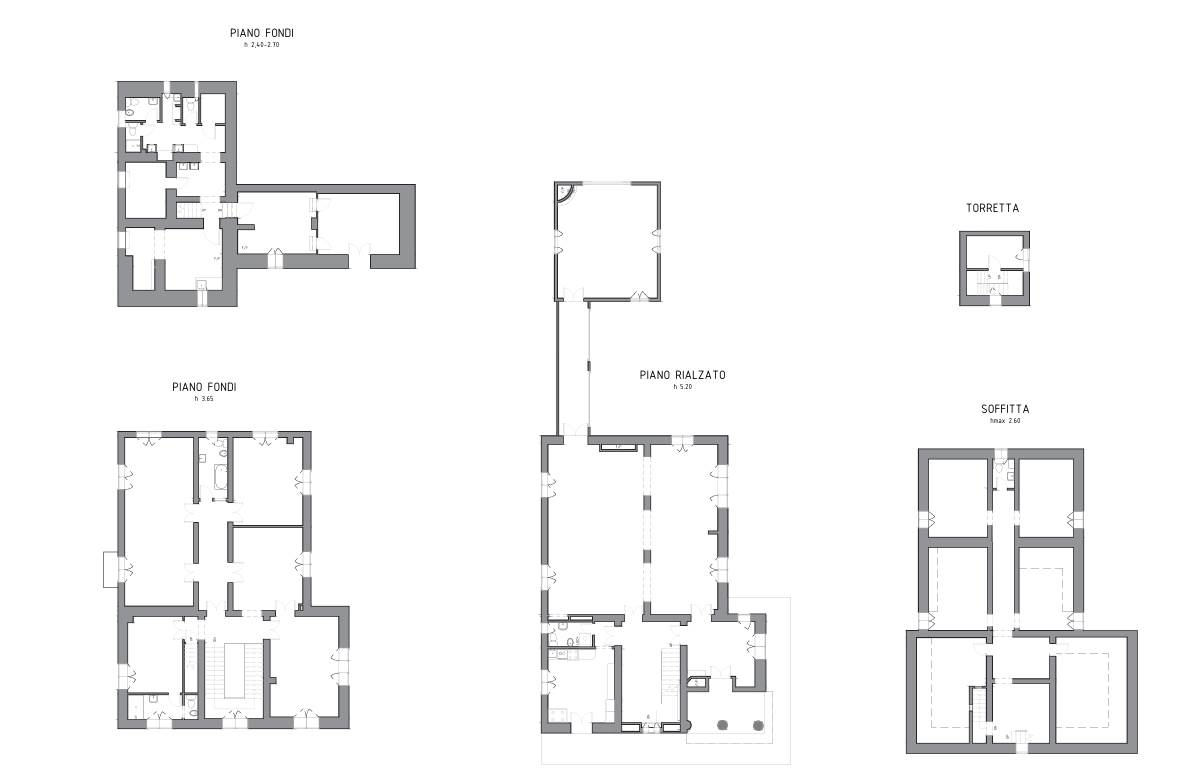
Castello a Serra Riccò (GE)

Castello in vendita • Serra Riccò - Via Ponte
Castello situato a Serra Riccò (GE), composto da 22 vani interni ed utilizzato come abitazione, trova posto all'interno di una serie di terreni agricoli che si estendono per 12.110 mq.

22REB è a disposizione per valutare come la nostra esperienza potrà favorirti nel realizzare il tuo miglior investimento.


L'immobile è oggetto di vendita giudiziaria.

22REB non si occupa di attività di intermediazione imm. di cui alla legge 39/89.
 Per motivi di privacy la foto dell'immobile/terreno è indicativa ma non esaustiva.
Caratteristiche principali
Codice
GF633/26
Città
Serra Riccò
Categoria
Castello
Prezzo
1.625.574 €
Locali
1
Mq
808
Classe energetica
In fase di valutazione

Accessori: Ascensore

Mappa
Via Ponte , Serra Riccò (GE)
Condividi su
Cookie preference