Italiano
English
Español
العربية
425.000 €

Appartamento a Rozzano (MI)

Appartamento in vendita • Rozzano - Corso nilde iotti
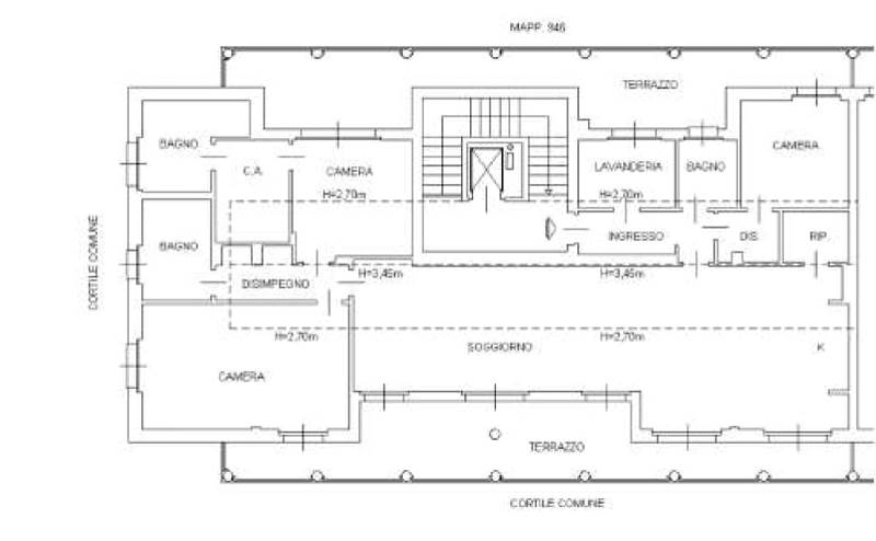
Appartamento situato a Rozzano (MI), è composto da un ingresso, un soggiorno, una cucina, tre camere da letto, tre bagni e una lavanderia.


22REB è a disposizione per valutare come la nostra esperienza potrà favorirti nel realizzare il tuo miglior investimento.


L'immobile è oggetto di vendita giudiziaria.

22REB non si occupa di attività di intermediazione imm. di cui alla legge 39/89.
 Per motivi di privacy la foto dell'immobile/terreno è indicativa ma non esaustiva.
Caratteristiche principali
Codice
GF652/26
Città
Rozzano
Categoria
Appartamento
Prezzo
425.000 €
Locali
9,5
Camere
3
Bagni
3
Mq
214
Classe energetica
In fase di valutazione

Accessori: Ascensore

Mappa
Corso nilde iotti , Rozzano (MI)
Condividi su
Cookie preference