Italiano
English
Español
العربية
1.067.063 €

Villa a Pieve Ligure (GE)

Villa in vendita • Bogliasco - VIA PRIVATA ALFONSO MEZZANO
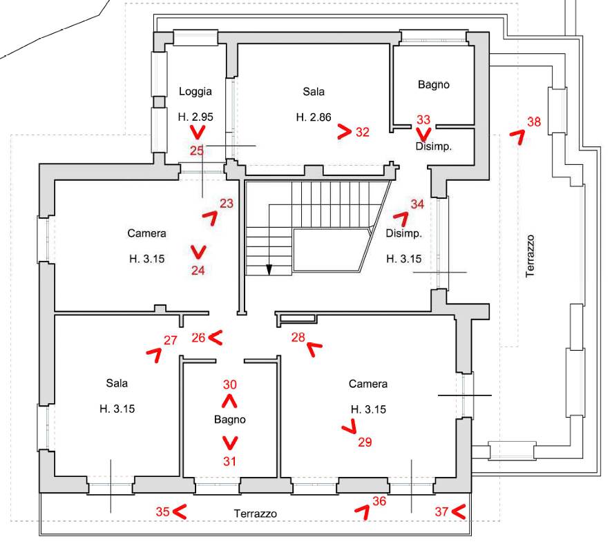
Villa con tre terreni e un garage situata a Pieve Ligure (GE), gode di un'ottima posizione panoramica con vista mare sul monte di Portofino, è circondata dal parco pertinenziale che ne delimita i confini e si sviluppa su tre livelli. La casa è composta da: un portico d'ingresso, un soggiorno, una cucina, una sala da pranzo, uno studio e un bagno. Al piano primo troviamo tre camere, due bagni, una loggia e un ulteriore sala / soggiorno da adibire a piacimento.


22REB è a disposizione per valutare come la nostra esperienza potrà favorirti nel realizzare il tuo miglior investimento.


L'immobile è oggetto di vendita giudiziaria.

22REB non si occupa di attività di intermediazione imm. di cui alla legge 39/89.
 Per motivi di privacy la foto dell'immobile/terreno è indicativa ma non esaustiva.
Caratteristiche principali
Codice
GF658/26
Città
Bogliasco
Categoria
Villa
Prezzo
1.067.063 €
Locali
15
Mq
307
Classe energetica
In fase di valutazione

Accessori: Ascensore

Mappa
VIA PRIVATA ALFONSO MEZZANO , Bogliasco (GE)
Condividi su
Cookie preference