Italiano
English
Español
العربية
295.103 €

Ufficio a Bolzano (BZ)

Ufficio in vendita • Bolzano - via maso della pieve
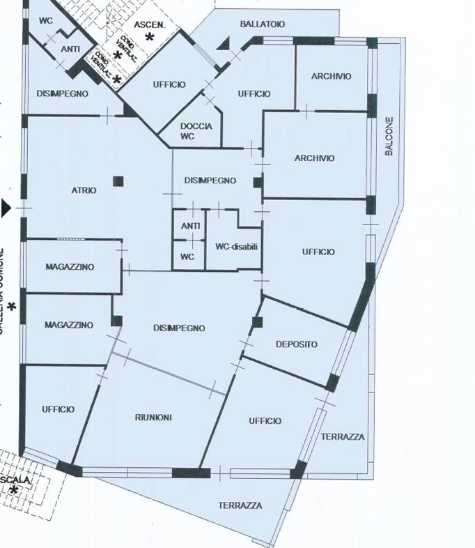
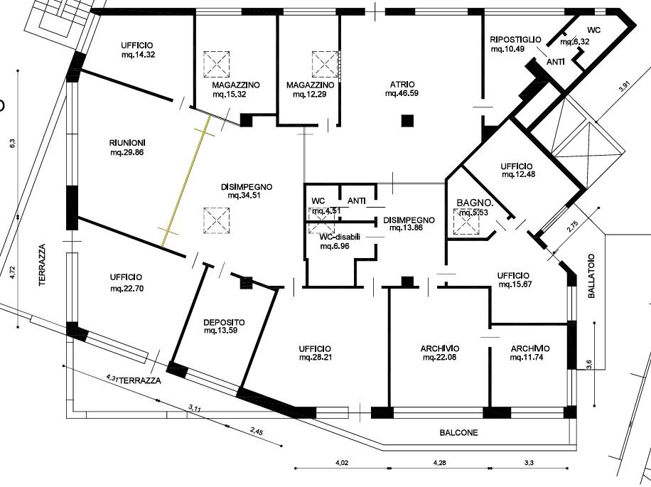
Ufficio situato a Bolzano (BZ), è collocato al terzo piano di un ampio edificio e ha una superficie di 389,00 mq. Internamente è composto da: un atrio di ingresso, 5 uffici singoli, una sala riunioni, 3 bagni di cui uno per disabili, 2 sale archivi, 2 magazzini, 2 terrazze, 1 balcone e 1 ballatoio.


22REB è a disposizione per valutare come la nostra esperienza potrà favorirti nel realizzare il tuo miglior investimento.


L'immobile è oggetto di vendita giudiziaria.

22REB non si occupa di attività di intermediazione imm. di cui alla legge 39/89.
 Per motivi di privacy la foto dell'immobile/terreno è indicativa ma non esaustiva.
Caratteristiche principali
Codice
GF668/26
Città
Bolzano
Categoria
Ufficio
Prezzo
295.103 €
Locali
13,5
Bagni
3
Mq
389
Classe energetica
In fase di valutazione

Accessori: Ascensore

Mappa
via maso della pieve , Bolzano (BZ)
Condividi su
Cookie preference