Italiano
English
Español
العربية
1.426.806 €

Capannone a Vasto (CH)

Capannone in vendita • Vasto - via Pennaluce
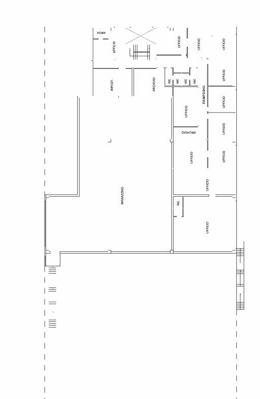
Capannone situato a Vasto (CH), è collocato in zona industriale e si sviluppa su due piani, di cui uno interrato. La struttura portante è di tipo prefabbricata con altezza sotto trave pari a 8,00 metri. Al suo interno troviamo un ingresso principale, uffici, spogliatoi, area stoccaggio, magazzino, area di lavorazione e imbottigliamento. Internamente al capannone troviamo anche un appartamento che fa parte del lotto di vendita.


22REB è a disposizione per valutare come la nostra esperienza potrà favorirti nel realizzare il tuo miglior investimento.


L'immobile è oggetto di vendita giudiziaria.

22REB non si occupa di attività di intermediazione imm. di cui alla legge 39/89.
 Per motivi di privacy la foto dell'immobile/terreno è indicativa ma non esaustiva.
Caratteristiche principali
Codice
GF672/26
Città
Vasto
Categoria
Capannone
Prezzo
1.426.806 €
Locali
1
Mq
2980
Classe energetica
In fase di valutazione

Accessori: Ascensore

Mappa
via Pennaluce , Vasto (CH)
Condividi su
Cookie preference