Italiano
English
Español
العربية
1.650.000 €

Appartamento a Napoli (NA)

Appartamento in vendita • Napoli - Via Santo Strato
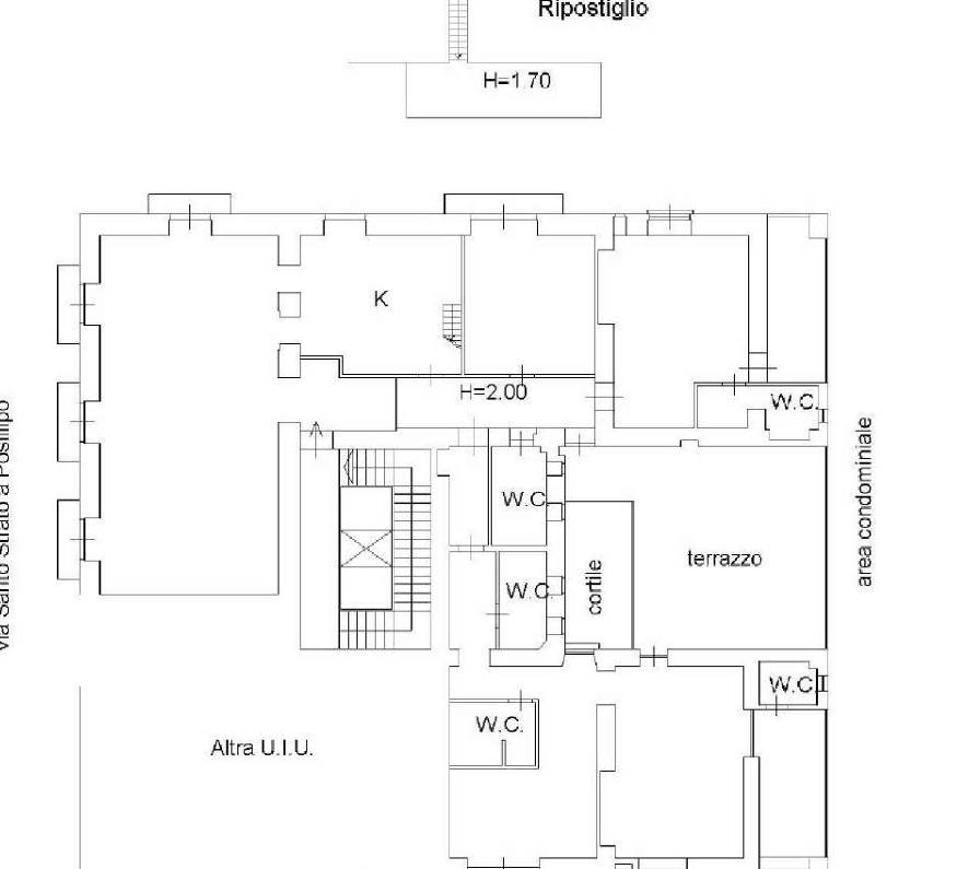
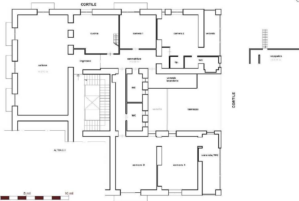
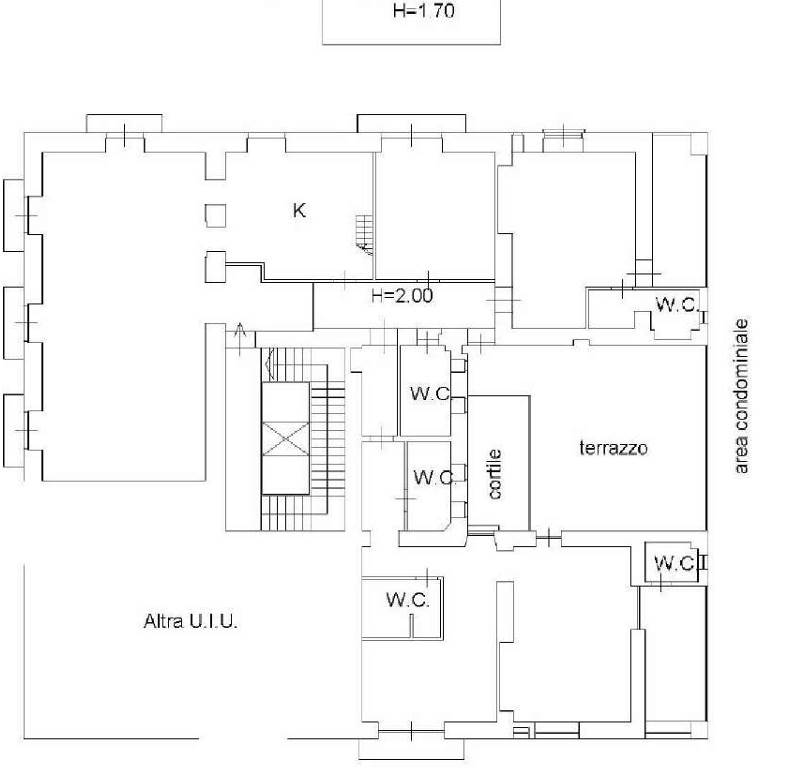
Appartamento situato a Napoli (NA), collocato al terzo piano e composto al suo interno da: ampio soggiorno, cucina abitabile, un soppalco, quattro camere da letto, tre bagni, ripostiglio, due verande, ampio terrazzo con una veranda esterna.


22REB è a disposizione per valutare come la nostra esperienza potrà favorirti nel realizzare il tuo miglior investimento.


L'immobile è oggetto di vendita giudiziaria.

22REB non si occupa di attività di intermediazione imm. di cui alla legge 39/89.
 Per motivi di privacy la foto dell'immobile/terreno è indicativa ma non esaustiva.
Caratteristiche principali
Codice
GF682/26
Città
Napoli
Categoria
Appartamento
Prezzo
1.650.000 €
Locali
16
Camere
4
Bagni
3
Mq
341
Classe energetica
In fase di valutazione

Accessori: Ascensore

Mappa
Via Santo Strato , Napoli (NA)
Condividi su
Cookie preference