Italiano
English
Español
العربية
1.492.500 €

Capannone a Carinaro (CE)

Capannone in vendita • Carinaro - II traversa zona ASI Aversa Nord
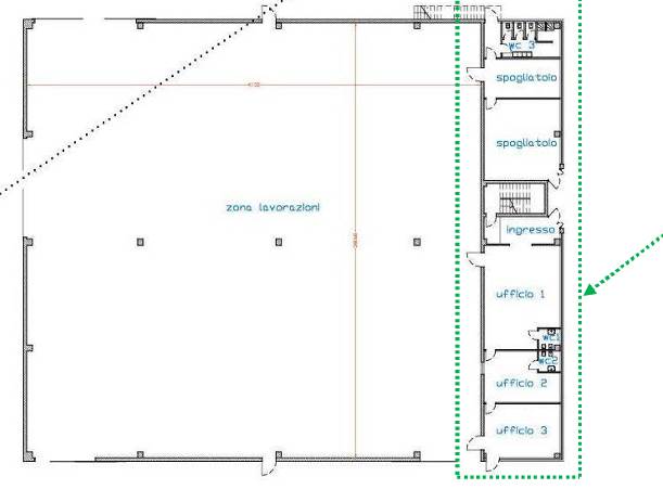
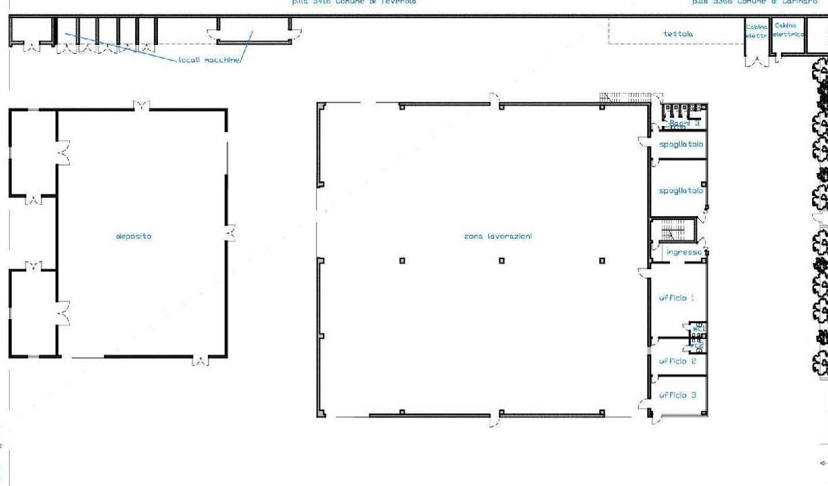
Capannone industriale situato a Carinaro (CE), si compone di un ampio opificio al piano terra con annessi uffici e spazi destinati agli operai, dislocati ai piani terra e primo.



22REB è a disposizione per valutare come la nostra esperienza potrà favorirti nel realizzare il tuo miglior investimento.


L'immobile è oggetto di vendita giudiziaria.

22REB non si occupa di attività di intermediazione imm. di cui alla legge 39/89.
 Per motivi di privacy la foto dell'immobile/terreno è indicativa ma non esaustiva.
Caratteristiche principali
Codice
GF688/26
Città
Carinaro
Categoria
Capannone
Prezzo
1.492.500 €
Locali
1
Mq
2650
Classe energetica
In fase di valutazione

Accessori: Ascensore

Mappa
II traversa zona ASI Aversa Nord , Carinaro (CE)
Condividi su
Cookie preference