Italiano
English
Español
العربية
547.800 €

Villa a Loiri Porto San Paolo (SS)

Villa in vendita • Loiri Porto San Paolo - Via barbagia
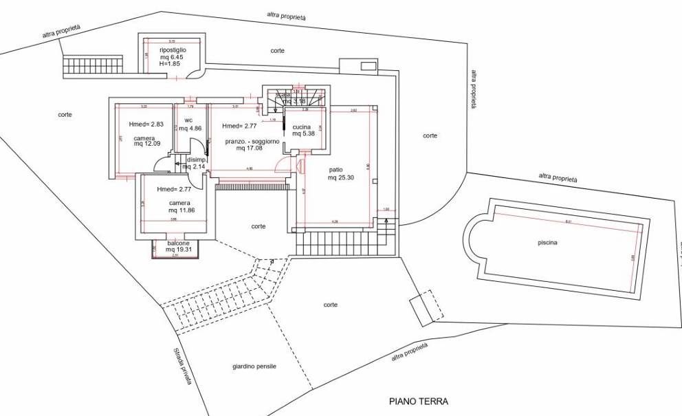
Villa con piscina situata a Loiri Porto San Paolo (SS), gli interni sono così distribuiti: al piano terra una cucina, pranzo / soggiorno, bagno, 2 camere e una scala di accesso al piano interrato, mentre una veranda coperta ci conduce al giardino con piscina. Al piano interrato troviamo una cantina, un bagno, un locale di sgombero e una lavanderia, infine i 2 posti auto che sono coperti.


22REB è a disposizione per valutare come la nostra esperienza potrà favorirti nel realizzare il tuo miglior investimento.


L'immobile è oggetto di vendita giudiziaria.

22REB non si occupa di attività di intermediazione imm. di cui alla legge 39/89.
 Per motivi di privacy la foto dell'immobile/terreno è indicativa ma non esaustiva.
Caratteristiche principali
Codice
GF690/26
Città
Loiri Porto San Paolo
Categoria
Villa
Prezzo
547.800 €
Locali
7
Bagni
1
Mq
136
Classe energetica
In fase di valutazione

Accessori: Ascensore

Mappa
Via barbagia , Loiri Porto San Paolo (SS)
Condividi su
Cookie preference