Italiano
English
Español
العربية
166.500 €

Villetta a Badia Polesine (RO)

Villetta schiera in vendita • Badia Polesine - Piazza vangadizza
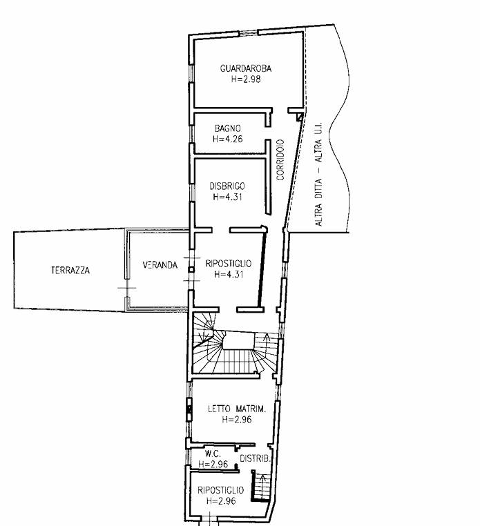
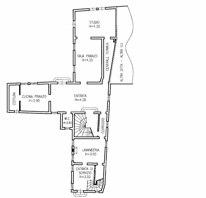
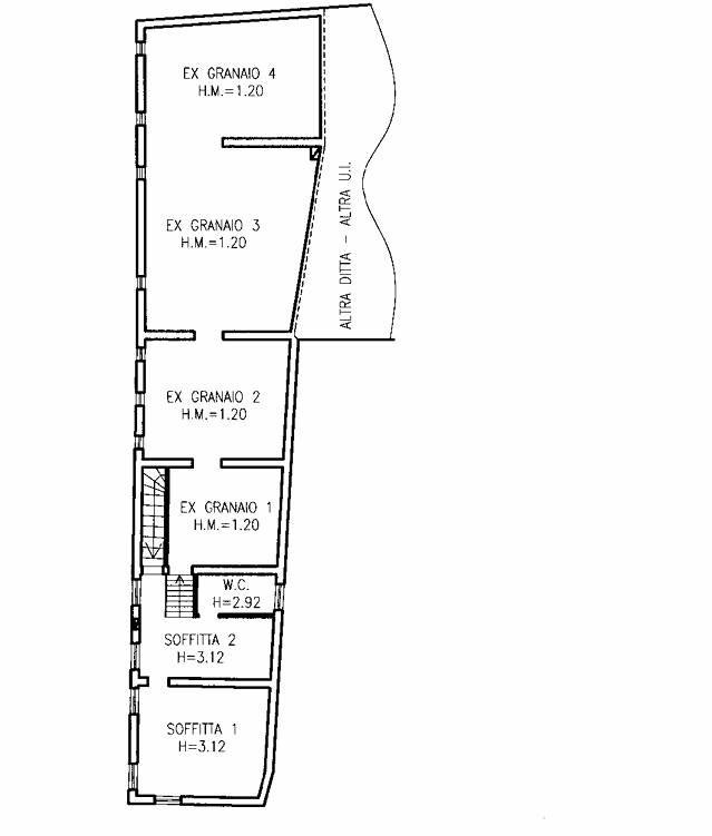
Villetta situata a Badia Polesine (RO), all'interno è composta da ingresso, soggiorno, cucina, sala da pranzo, un ufficio, lavanderia, cinque camere da letto, una veranda e tre bagni.


22REB è a disposizione per valutare come la nostra esperienza potrà favorirti nel realizzare il tuo miglior investimento.


L'immobile è oggetto di vendita giudiziaria.

22REB non si occupa di attività di intermediazione imm. di cui alla legge 39/89.
 Per motivi di privacy la foto dell'immobile/terreno è indicativa ma non esaustiva.
Caratteristiche principali
Codice
GF722/26
Città
Badia Polesine
Categoria
Villetta schiera
Prezzo
166.500 €
Locali
13
Camere
5
Mq
202
Classe energetica
In fase di valutazione

Accessori: Ascensore

Mappa
Piazza vangadizza , Badia Polesine (RO)
Condividi su
Cookie preference