Italiano
English
Español
العربية
604.152 €

Villa a Moncalieri (TO)

Villa in vendita • Moncalieri - Str. del Redentore
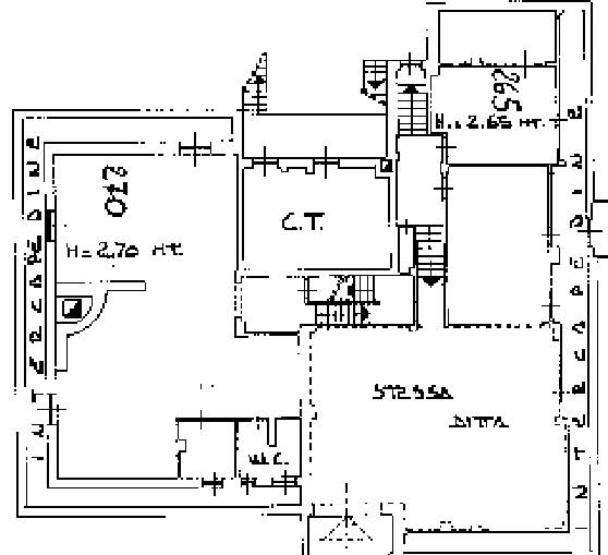
Villa indipendente situata a Moncalieri (TO), è circondata da un ampio giardino esclusivo all'interno del quale troviamo una piscina e i garage. L'abitazione si eleva su due piani fuori terra più uno interrato, all'interno si compone di: ingresso su grande cucina living, camera da letto padronale, due camere, corridoio, soggiorno di 40 mq, quarta camera, uno studio, quattro bagni, disimpegno, seconda cucina e un ripostiglio. Al piano seminterrato invece troviamo due cantine, una lavanderia, una centrale termica, una taverna con camino e cucina ed infine un bagno.


22REB è a disposizione per valutare come la nostra esperienza potrà favorirti nel realizzare il tuo miglior investimento.


L'immobile è oggetto di vendita giudiziaria.

22REB non si occupa di attività di intermediazione imm. di cui alla legge 39/89.
 Per motivi di privacy la foto dell'immobile/terreno è indicativa ma non esaustiva.
Caratteristiche principali
Codice
GF743/26
Città
Moncalieri
Categoria
Villa
Prezzo
604.152 €
Locali
27,5
Mq
541
Classe energetica
In fase di valutazione

Accessori: Ascensore

Mappa
Str. del Redentore , Moncalieri (TO)
Condividi su
Cookie preference