Italiano
English
Español
العربية
391.800 €

Villa a Manciano (GR)

Villa in vendita • Manciano - Loc. Camerone Marsiliana
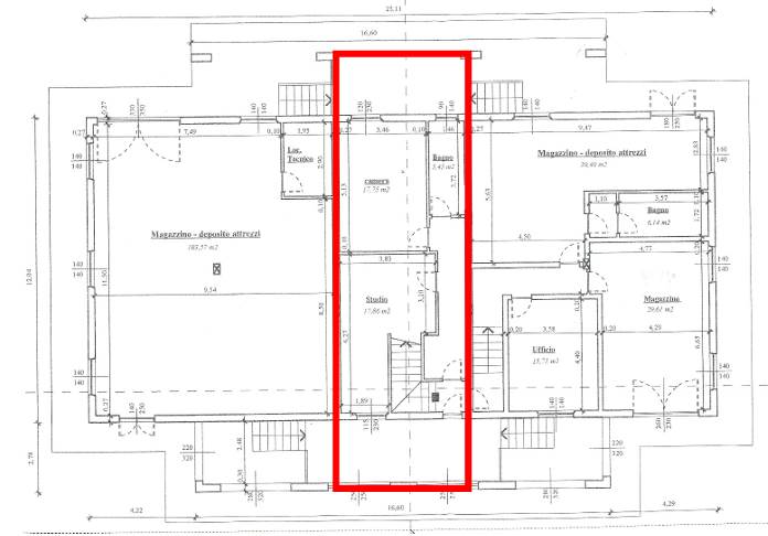
Villa situata a Manciano (GR), si sviluppa su due piani e trova posto all'interno di una corte privata, con piscina, garage e un magazzino. Al piano terra troviamo uno studio, una camera e un bagno, mentre al piano superiore
un soggiorno, una cucina, tre camere, due bagni, un guardaroba e un ampio terrazzo di 125,00 mq.


22REB è a disposizione per valutare come la nostra esperienza potrà favorirti nel realizzare il tuo miglior investimento.


L'immobile è oggetto di vendita giudiziaria.

22REB non si occupa di attività di intermediazione imm. di cui alla legge 39/89.
 Per motivi di privacy la foto dell'immobile/terreno è indicativa ma non esaustiva.
Caratteristiche principali
Codice
GF761/26
Città
Manciano
Categoria
Villa
Prezzo
391.800 €
Locali
11,5
Mq
270
Classe energetica
In fase di valutazione

Accessori: Ascensore

Mappa
Loc. Camerone Marsiliana , Manciano (GR)
Condividi su
Cookie preference