Capannone a Cereseto (AL)
Capannone in vendita • Cereseto - Via Riccardo Gualino
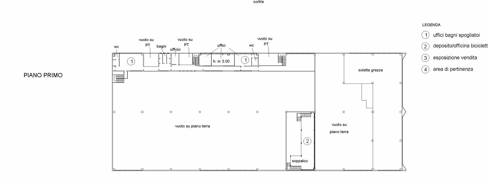
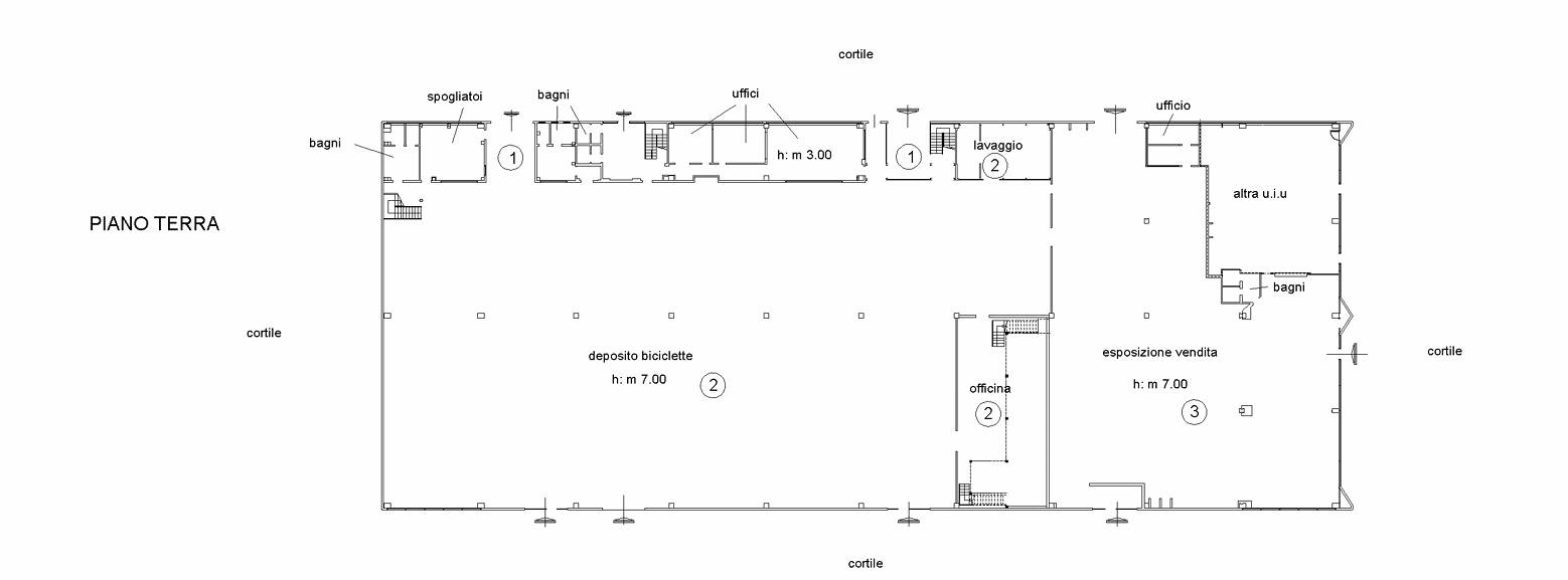
Capannone di 4.513,00mq situato a Cereseto (AL) in zona industriale, al piano terra è composto da un deposito, un'area di esposizione vendita, un' area ristoro, una cucina, spogliatoi ed uffici (quest'ultimi di 433,00mq). Al primo piano troviamo gli uffici, gli spogliatoi e un soppalco, infine l'area esterna che ha una superficie di 14.400,00mq.
22 REB opera a livello internazionale e mette a tua disposizione professionisti specializzati nel mondo delle aste immobiliari, con assistenza legale qualificata durante l’intera procedura.
Grazie al nostro broker partner è possibile valutare mutui e finanziamenti anche per acquisti all’asta.
Filiali operative: Treviso • Padova • Vicenza • Bassano del Grappa • Roma • Bergamo – prenota un appuntamento informativo per scoprire come funziona il settore delle aste immobiliari.
In ufficio potrai inoltre accedere a opportunità immobiliari riservate, parte di un portafoglio di immobili non pubblicati sui portali o di prossima uscita.
L’immobile è oggetto di vendita giudiziaria.
22REB non svolge attività di intermediazione immobiliare ai sensi della Legge 39/89. Le immagini sono indicative e non necessariamente rappresentative del bene.
Caratteristiche principali
Classe energetica
In fase di valutazione
Mappa
Via Riccardo Gualino , Cereseto (AL)