Italiano
English
Español
العربية
1.569.668 €

Villa veneta a Pianiga (VE)

Villa in vendita • Pianiga - Via Albarea
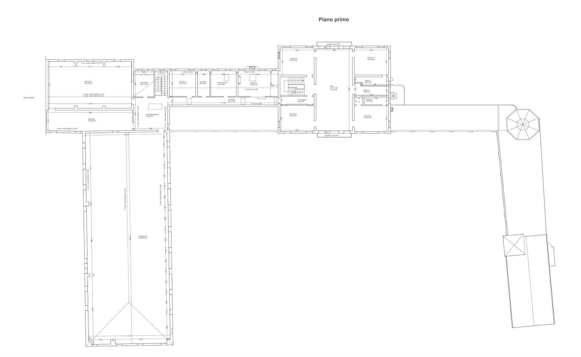
Antica Villa Veneta composta da un corpo centrale principale distribuito su tre livelli, da due ali porticate adiacenti e da un portico, il tutto sito a Pianiga (VE), in via Albarea. La villa si articola su tre livelli e ospita porticati, verande, una piscina e un oratorio, oltre a un cortile esterno.


22REB è a disposizione per valutare come la nostra esperienza potrà favorirti nel realizzare il tuo miglior investimento.


L'immobile è oggetto di vendita giudiziaria.

22REB non si occupa di attività di intermediazione imm. di cui alla legge 39/89.
Per motivi di privacy la foto dell'immobile/terreno è indicativa ma non esaustiva.
Caratteristiche principali
Codice
GI563/24
Città
Pianiga
Categoria
Villa
Prezzo
1.569.668 €
Locali
33,5
Camere
10
Bagni
13
Mq
2026,25
Balconi
4
Mq Balcone
2
Classe energetica
In fase di valutazione
Mappa
Via Albarea , Pianiga (VE)
Condividi su
Cookie preference