Italiano
English
Español
العربية
304.000 €

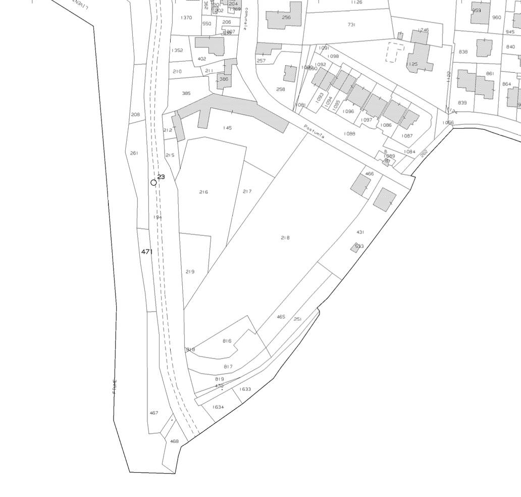
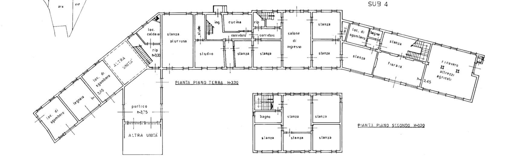
Palazzo Storico a Meduna di Livenza (TV)

Hotel in vendita • Meduna di Livenza - Via Vittorio Emanuele
Palazzo Storico a Meduna di Livenza (TV) in via Vittorio Emanuele. Palazzo Piva, storica villa risalente al XVIII-XIX secolo composta dai tre piani fuori terra più un seminterrato. Edificio adiacente ad uso turistico ricettivo attualmente destinata all’uso agrituristico. Di pertinenza 18.087 metri quadrati di superficie di parchi e terreni adiacenti.


22REB è a disposizione per valutare come la nostra esperienza potrà favorirti nel realizzare il tuo miglior investimento.


L'immobile è oggetto di vendita giudiziaria.

22REB non si occupa di attività di intermediazione imm. di cui alla legge 39/89.
Per motivi di privacy la foto dell'immobile/terreno è indicativa ma non esaustiva.
Caratteristiche principali
Codice
GM1452/24
Città
Meduna di Livenza
Categoria
Hotel
Prezzo
304.000 €
Locali
1
Mq
1488,92
Classe energetica
In fase di valutazione
Mappa
Via Vittorio Emanuele , Meduna di Livenza (TV)
Condividi su
Cookie preference