Appartamento a Fiesso Umbertiano (RO)
Appartamento in vendita • Fiesso Umbertiano - Via Trieste
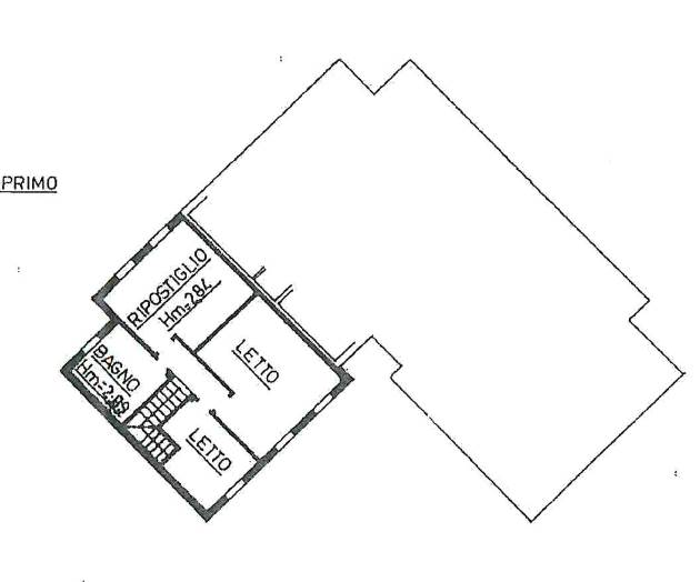
Appartamento con garage in fabbricato quadrifamiliare con portico ed area cortiliva comuni situato a Fiesso Umbertiano (RO) in via Trieste, composto al piano terra da un ingresso, un soggiorno-sala da pranzo, cucina e bagno con anti-bagno; al piano primo da due camere da letto, un bagno ed un ripostiglio; al piano seminterrato da cantina ed autorimessa.
22REB è a disposizione per valutare come la nostra esperienza potrà favorirti nel realizzare il tuo miglior investimento.
L'immobile è oggetto di vendita giudiziaria.
22REB non si occupa di attività di intermediazione imm. di cui alla legge 39/89.
Per motivi di privacy la foto dell'immobile/terreno è indicativa ma non esaustiva.
Caratteristiche principali
Classe energetica
In fase di valutazione
Mappa
Via Trieste , Fiesso Umbertiano (RO)