Italiano
English
Español
العربية
175.309 €

Capannoni a Nogarole Rocca (VR)

Capannone in vendita • Nogarole Rocca - Via Roma
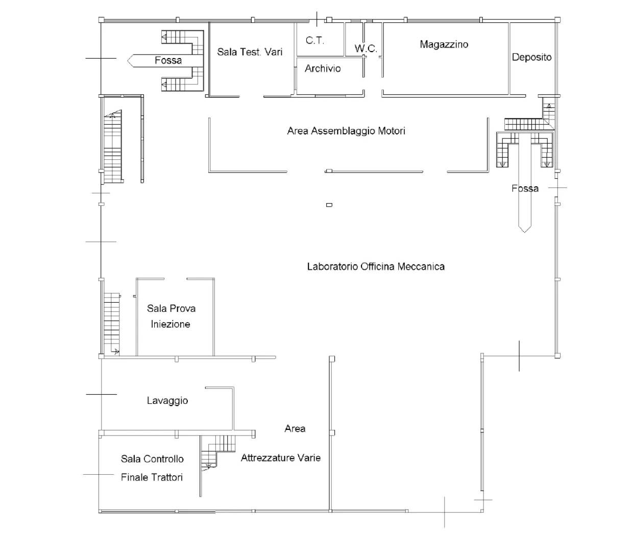
Capannoni con area di pertinenza siti a Nogarole Rocca (VR) in via Roma, immobile composto da due fabbricati, adibiti ad officina meccanica con annessi uffici, magazzini e depositi.


22REB è a disposizione per valutare come la nostra esperienza potrà favorirti nel realizzare il tuo miglior investimento.


L'immobile è oggetto di vendita giudiziaria.

22REB non si occupa di attività di intermediazione imm. di cui alla legge 39/89.
 Per motivi di privacy la foto dell'immobile/terreno è indicativa ma non esaustiva.
Caratteristiche principali
Codice
GM2496/25
Città
Nogarole Rocca
Categoria
Capannone
Prezzo
175.309 €
Locali
15
Mq
1409
Classe energetica
In fase di valutazione
Mappa
Via Roma , Nogarole Rocca (VR)
Condividi su
Cookie preference