Italiano
English
Español
العربية
84.000 €

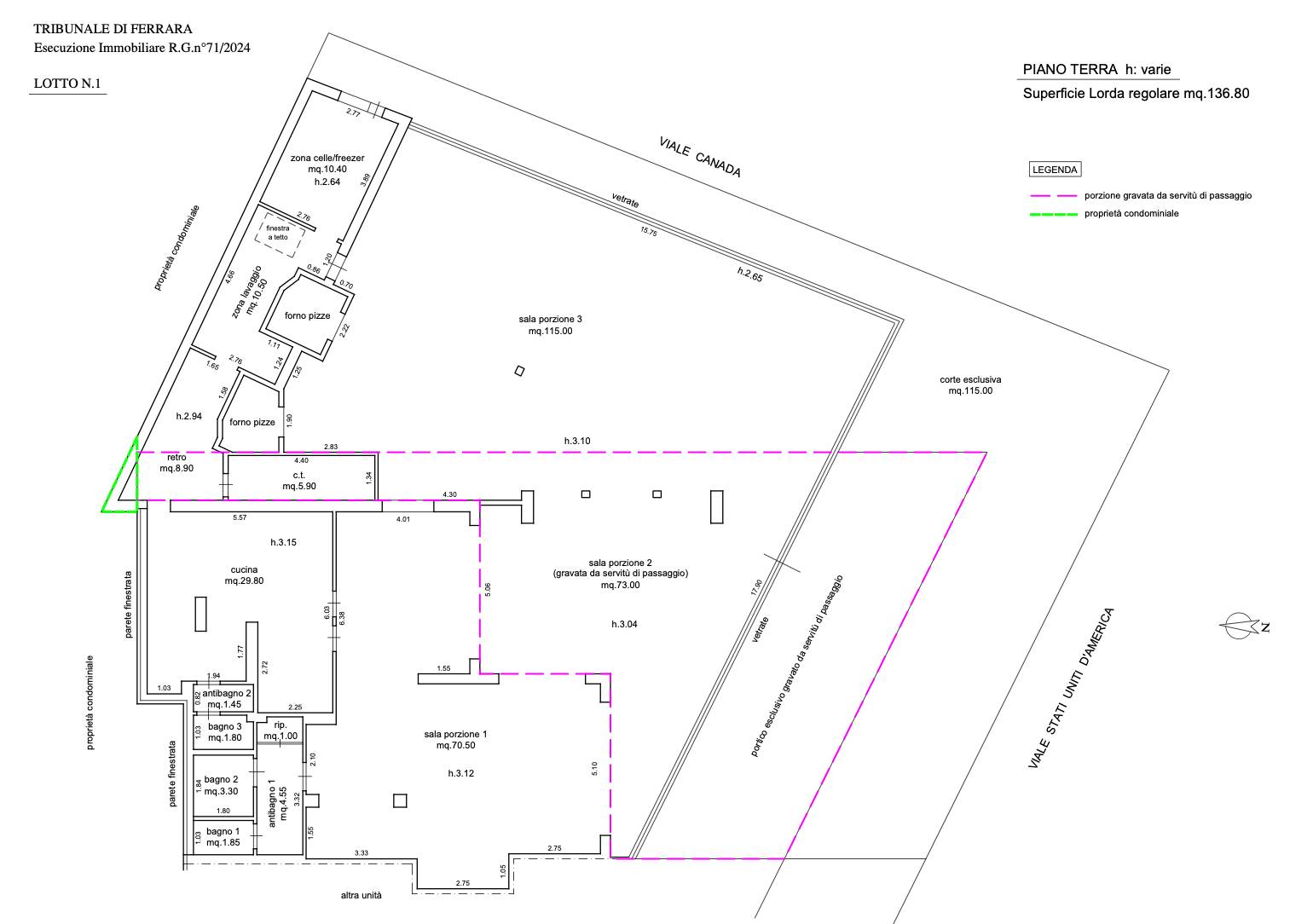
Ristorante a Comacchio (FE)

Negozio in vendita • Comacchio (Lido delle Nazioni) - Viale Stati Uniti D'America
Ristorante situato a Comacchio (FE), località Lido delle Nazioni in viale Stati Uniti D'America, per una superficie commerciale complessiva di 183,7 metri quadri.


22REB è a disposizione per valutare come la nostra esperienza potrà favorirti nel realizzare il tuo miglior investimento.


L'immobile è oggetto di vendita giudiziaria.

22REB non si occupa di attività di intermediazione imm. di cui alla legge 39/89.
 Per motivi di privacy la foto dell'immobile/terreno è indicativa ma non esaustiva.
Caratteristiche principali
Codice
GM2570/25
Città
Comacchio (Lido delle Nazioni)
Categoria
Negozio
Prezzo
84.000 €
Locali
1
Mq
183,7
Classe energetica
In fase di valutazione
Mappa
Viale Stati Uniti D'America , Comacchio (FE)
Condividi su
Cookie preference