Italiano
English
Español
العربية
203.250 €

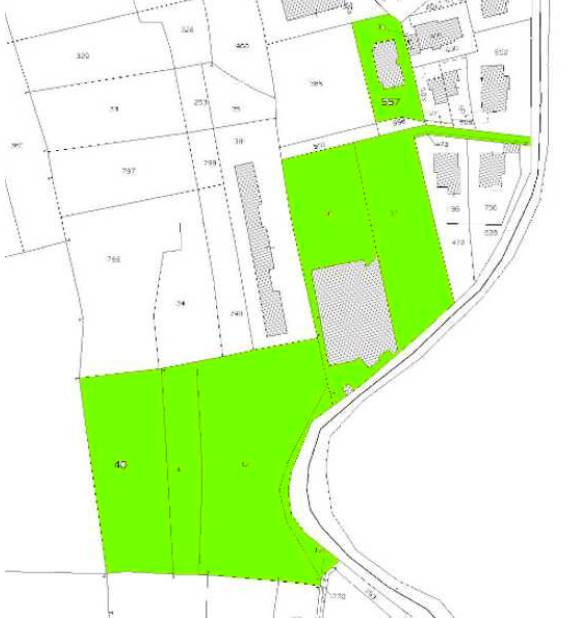
Complesso industriale a Grezzana (VR)

Capannone in vendita • Grezzana (Lugo) - Via Don Giovanni Calabria
Complesso industriale con terreni di pertinenza situato in Comune di Grezzana (VR), frazione Lugo in via Don G. Calabria, terreni per una superficie complessiva di 9.983 metri quadri di cui 4.000 metri quadri con potenzialità edificatoria.


22REB è a disposizione per valutare come la nostra esperienza potrà favorirti nel realizzare il tuo miglior investimento.


L'immobile è oggetto di vendita giudiziaria.

22REB non si occupa di attività di intermediazione imm. di cui alla legge 39/89.
 Per motivi di privacy la foto dell'immobile/terreno è indicativa ma non esaustiva.
Caratteristiche principali
Codice
GM2693/25
Città
Grezzana (Lugo)
Categoria
Capannone
Prezzo
203.250 €
Locali
1
Mq
2550
Classe energetica
In fase di valutazione
Mappa
Via Don Giovanni Calabria , Grezzana (VR)
Condividi su
Cookie preference