Italiano
English
Español
العربية
308.463 €

Capannone a Mirano (VE)

Capannone in vendita • Mirano - Via Guglielmo Marconi
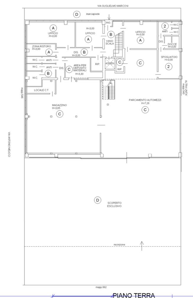
Porzione di capannone ad uso artigianale con uffici ed annesso scoperto esclusivo con impianto fotovoltaico in copertura il tutto situato a Mirano (VE) in via Guglielmo Marconi, per una superficie commerciale complessiva di 819,4 metri quadri.


22REB è a disposizione per valutare come la nostra esperienza potrà favorirti nel realizzare il tuo miglior investimento.


L'immobile è oggetto di vendita giudiziaria.

22REB non si occupa di attività di intermediazione imm. di cui alla legge 39/89.
 Per motivi di privacy la foto dell'immobile/terreno è indicativa ma non esaustiva.
Caratteristiche principali
Codice
GM2820/25
Città
Mirano
Categoria
Capannone
Prezzo
308.463 €
Locali
1
Mq
819,4
Classe energetica
In fase di valutazione
Mappa
Via Guglielmo Marconi , Mirano (VE)
Condividi su
Cookie preference