Italiano
English
Español
العربية
132.624 €

Villa bifamiliare a Cornedo Vicentino (VI)

Villa Bifamiliare in vendita • Cornedo Vicentino - Via San Lazzaro
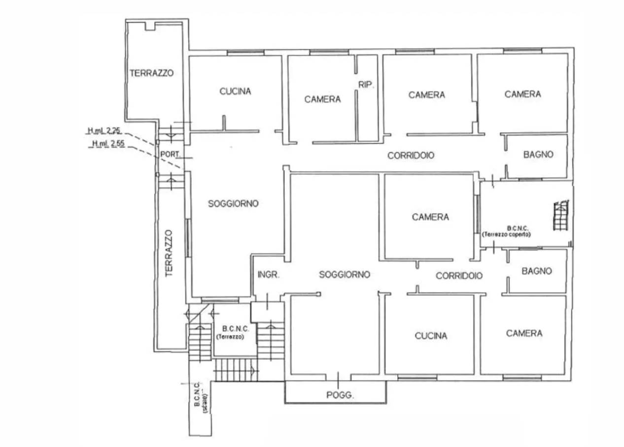
Villa bifamiliare su un piano interrato e tre livelli fuori terra situato a Cornedo Vicentino (VI) in via San Lazzaro, costituito da due appartamenti contigui di diversa metratura, da un sottostante deposito e da due autorimesse private al piano terra. Primo appartamento di 170 metri quadri commerciali composto al piano primo da un ingresso, un soggiorno, cucina, corridoio, un bagno, tre camere da letto, disimpegno con scala in legno; al piano secondo da una zona condivisa e locali destinati a soffitta. Secondo appartamento di 150 metri quadri commerciali composto al piano primo da un ingresso, un soggiorno, cucina con poggiolo, corridoio, bagno, due camere da letto, disimpegno con scala in legno; al piano secondo da una zona condivisa, locali destinati a soffitta. Deposito di superficie commerciale 170 metri quadri composto al piano interrato da un locale di deposito; al piano terra da ampio locale destinato a deposito e magazzino.


22REB è a disposizione per valutare come la nostra esperienza potrà favorirti nel realizzare il tuo miglior investimento.


L'immobile è oggetto di vendita giudiziaria.

22REB non si occupa di attività di intermediazione imm. di cui alla legge 39/89.
 Per motivi di privacy la foto dell'immobile/terreno è indicativa ma non esaustiva.
Caratteristiche principali
Codice
GM3258/25
Città
Cornedo Vicentino
Categoria
Villa Bifamiliare
Prezzo
132.624 €
Locali
13
Mq
490
Box
2
Mq Box
73
Classe energetica
In fase di valutazione
Mappa
Via San Lazzaro , Cornedo Vicentino (VI)
Condividi su
Cookie preference