Italiano
English
Español
العربية
39.000 €

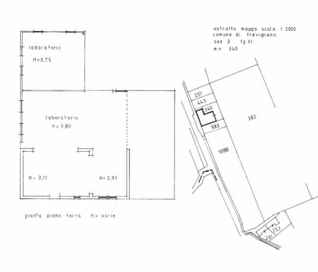
Laboratorio a Trevignano (TV)

Laboratorio in vendita • Trevignano - Via Solagna
Laboratorio artigianale al piano terra e magazzino al piano primo facenti parte di un fabbricato situato in Comune di Trevignano (TV) in via Solagna, per una superficie commerciale complessiva di 393 metri quadri.


22REB è a disposizione per valutare come la nostra esperienza potrà favorirti nel realizzare il tuo miglior investimento.


L'immobile è oggetto di vendita giudiziaria.

22REB non si occupa di attività di intermediazione imm. di cui alla legge 39/89.
 Per motivi di privacy la foto dell'immobile/terreno è indicativa ma non esaustiva.
Caratteristiche principali
Codice
GM3287/25
Città
Trevignano
Categoria
Laboratorio
Prezzo
39.000 €
Locali
1
Mq
393
Classe energetica
In fase di valutazione
Mappa
Via Solagna , Trevignano (TV)
Condividi su
Cookie preference