Italiano
English
Español
العربية
13.125 €

Casa singola a Posina (VI)

Casa singola in vendita • Posina - Piazza Libertà
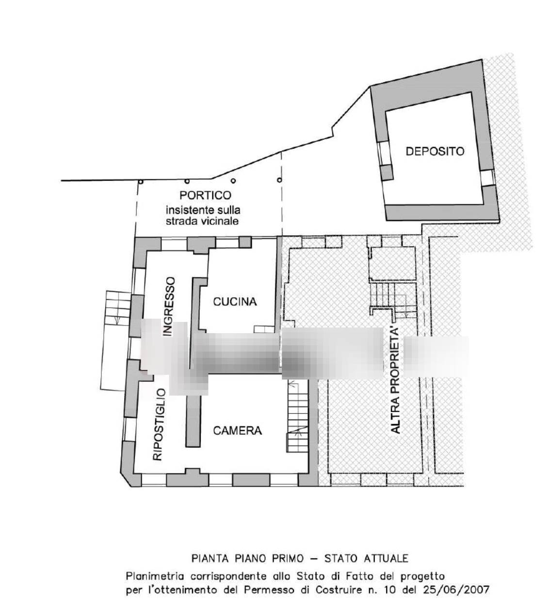
Abitazione su quattro livelli cielo-terra con annessa autorimessa ed un appezzamento di terreno situata a Posina (VI), località Fusine in piazza Libertà.
L’abitazione risulta in uno stato di degrado, al piano terra sono presenti un locale cucina, due cantine ed un ripostiglio; al piano primo da una cucina, una camera, un ripostiglio ed un bagno; al piano secondo sono presenti due camere e due ripostigli; al piano sottotetto si trovano tre locali destinati a soffitta. L’appezzamento di terreno di 959 metri quadri è totalmente a bosco e caratterizzato da una forte pendenza.


22REB è a disposizione per valutare come la nostra esperienza potrà favorirti nel realizzare il tuo miglior investimento.


L'immobile è oggetto di vendita giudiziaria.

22REB non si occupa di attività di intermediazione imm. di cui alla legge 39/89.
 Per motivi di privacy la foto dell'immobile/terreno è indicativa ma non esaustiva.
Caratteristiche principali
Codice
GM3350/25
Città
Posina
Categoria
Casa singola
Prezzo
13.125 €
Locali
8
Mq
225,37
Box
1
Mq Box
24
Classe energetica
In fase di valutazione
Mappa
Piazza Libertà , Posina (VI)
Condividi su
Cookie preference