Italiano
English
Español
العربية
303.500 €

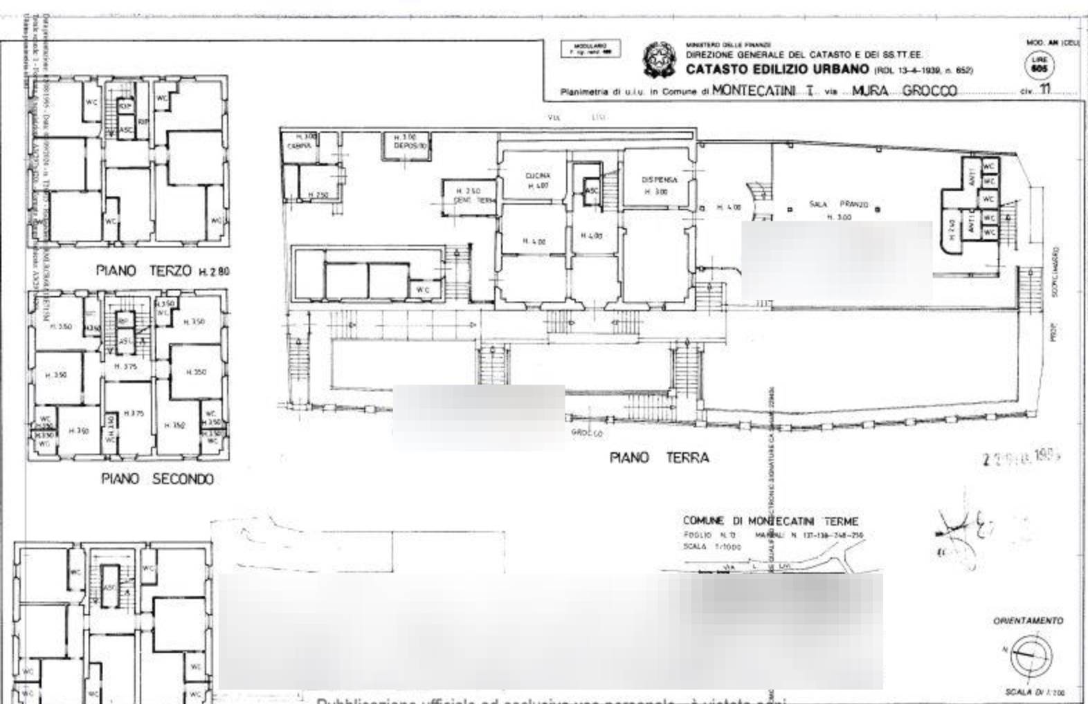
Complesso turistico-ricettivo a Montecatini Terme (PT)

Hotel in vendita • Montecatini Terme - Via Mura Pietro Grocco
Complesso immobiliare con destinazione turistico-ricettiva adibito a struttura alberghiera dislocato su di un lotto della superficie catastale di 1.350 mq situato a Montecatini Terme (PT) in via Mura Pietro Grocco. Complesso immobiliare composto da un edificio principale ubicato al centro del lotto, tre corpi accessori staccati da quest’ultimo, nonché da un’ampia terrazza-parcheggio con sottostante veranda posta a sud del corpo principale.


22REB è a disposizione per valutare come la nostra esperienza potrà favorirti nel realizzare il tuo miglior investimento.


L'immobile è oggetto di vendita giudiziaria.

22REB non si occupa di attività di intermediazione imm. di cui alla legge 39/89.
 Per motivi di privacy la foto dell'immobile/terreno è indicativa ma non esaustiva.
Caratteristiche principali
Codice
GM3382/25
Città
Montecatini Terme
Categoria
Hotel
Prezzo
303.500 €
Locali
1
Mq
780
Classe energetica
In fase di valutazione
Mappa
Via Mura Pietro Grocco , Montecatini Terme (PT)
Condividi su
Cookie preference