Italiano
English
Español
العربية
140.000 €

Fabbricato residenziale a Barbara Mossano (VI)

Stabile / Palazzo in vendita • Barbarano Mossano - Via Scaranto
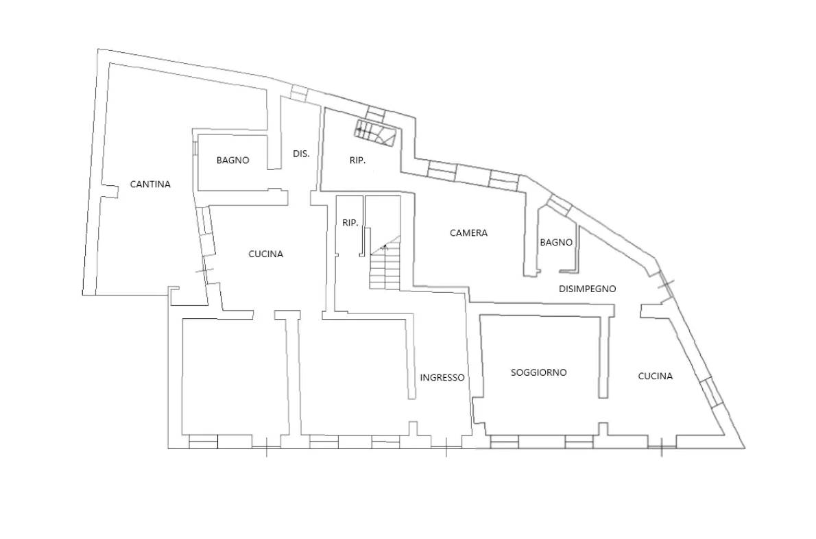
Fabbricato residenziale costituito da due unità con corte comune e magazzino da ristrutturare situato nel Comune di Barbarano Mossano (VI), frazione Barbarano Vicentino in via Scaranto. Prima abitazione composta al piano terra da soggiorno, cucina, disimpegno, bagno, camera e ripostiglio; al piano primo sottostrada è presente una cantina accessibile dal ripostiglio.
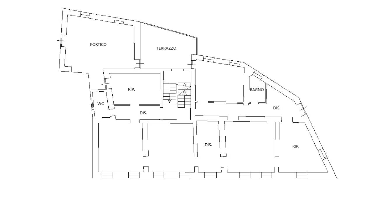
Seconda abitazione distribuita su quattro piani fuori terra, al piano terra è composto da ingresso, due vani, cucina, ripostiglio, disimpegno, bagno e cantina; al piano primo da quattro vani, due ripostigli, due bagni, portico, terrazzo e disimpegni; al piano secondo da disimpegno, due vani, due ripostigli, un wc ed un terrazzo; al piano terzo quattro vani sottotetto.


22REB è a disposizione per valutare come la nostra esperienza potrà favorirti nel realizzare il tuo miglior investimento.


L'immobile è oggetto di vendita giudiziaria.

22REB non si occupa di attività di intermediazione imm. di cui alla legge 39/89.
 Per motivi di privacy la foto dell'immobile/terreno è indicativa ma non esaustiva.
Caratteristiche principali
Codice
GM3433/25
Città
Barbarano Mossano
Categoria
Stabile / Palazzo
Prezzo
140.000 €
Locali
12
Mq
526
Classe energetica
In fase di valutazione
Stato Immobile
Da Ristrutturare
Mappa
Via Scaranto , Barbarano Mossano (VI)
Condividi su
Cookie preference