Italiano
English
Español
العربية
33.600 €

Appartamento a Quarto d'Altino (VE)

Appartamento in vendita • Quarto d'Altino - Via Dante
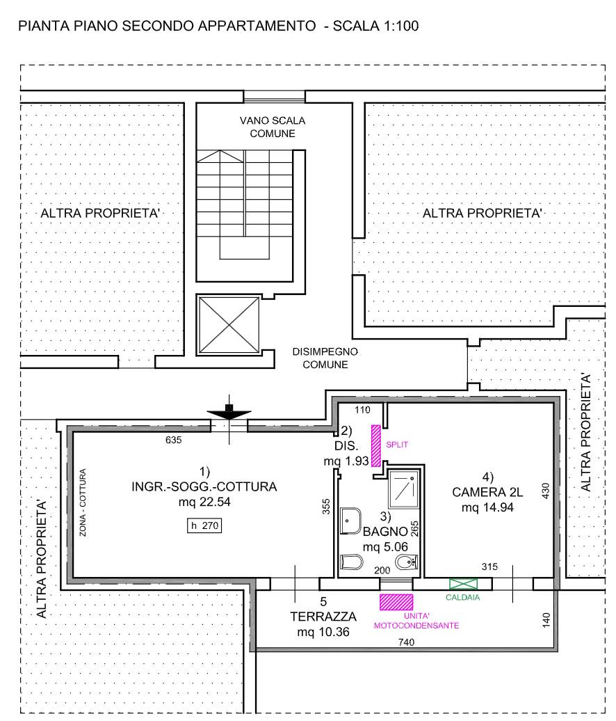
Appartamento al piano secondo con annessa autorimessa facente parte di un condominio situato a Quarto d'Altino (VE) in via Dante, composto da un ingresso, soggiorno con angolo cottura, disimpegno, un bagno, camera da letto ed un terrazzo.

Oggetto di vendita: Nuda proprietà dell'intero.


22REB è a disposizione per valutare come la nostra esperienza potrà favorirti nel realizzare il tuo miglior investimento.


L'immobile è oggetto di vendita giudiziaria.

22REB non si occupa di attività di intermediazione imm. di cui alla legge 39/89.
 Per motivi di privacy la foto dell'immobile/terreno è indicativa ma non esaustiva.
Caratteristiche principali
Codice
GM3500/25
Città
Quarto d'Altino
Categoria
Appartamento
Prezzo
33.600 €
Locali
3
Camere
1
Bagni
1
Mq
53
Box
1
Mq Box
18
Piano
2
Classe energetica
In fase di valutazione
Mappa
Via Dante , Quarto d'Altino (VE)
Condividi su
Cookie preference