Italiano
English
Español
العربية
34.200 €

Negozio a Vicenza (VI)

Negozio in vendita • Vicenza - Viale Francesco Crispi
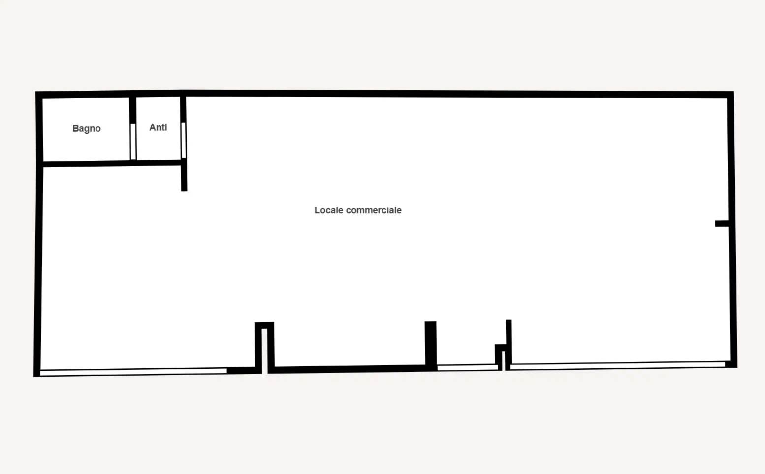
Negozio e posto auto ubicati al piano interrato di un complesso condominiale di ampie dimensioni situato nella zona ovest di Vicenza (VI), in viale Francesco Crispi a circa 1,5 km dal centro città. La zona è caratterizzata da edifici direzionali, commerciali e residenziali, ed è ben servita da infrastrutture e servizi pubblici. Il locale commerciale è completo di servizio igienico e anti bagno, ma è ancora al grezzo avanzato. L'unità commerciale si affaccia su di una galleria interna con un lato completamente vetrato.

Stato di occupazione: Immobile libero.


22REB è a disposizione per valutare come la nostra esperienza potrà favorirti nel realizzare il tuo miglior investimento.


L'immobile è oggetto di vendita giudiziaria.

22REB non si occupa di attività di intermediazione imm. di cui alla legge 39/89.
 Per motivi di privacy la foto dell'immobile/terreno è indicativa ma non esaustiva.
Caratteristiche principali
Codice
GM3503/25
Città
Vicenza
Categoria
Negozio
Prezzo
34.200 €
Locali
1
Bagni
1
Mq
95
Classe energetica
In fase di valutazione
Mappa
Viale Francesco Crispi , Vicenza (VI)
Condividi su
Cookie preference