Italiano
English
Español
العربية
283.500 €

Villa bifamiliare a Roncade (TV)

Villa Bifamiliare in vendita • Roncade (Musestre) - Via Principe
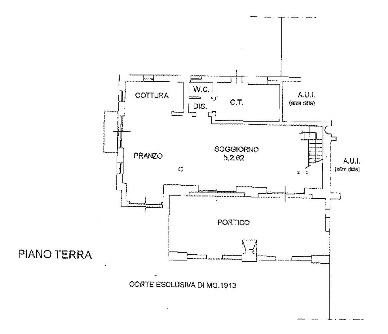
Porzione Nord di un edificio a destinazione residenziale di tipo bifamiliare al piano terra e primo, parte di un antico edificio, con area scoperta ad uso esclusivo di 1.913 metri quadri il tutto sito a Roncade (TV), frazione Musestre in via Principe. Abitazione composta al piano terra da portico, soggiorno-sala da pranzo con angolo cottura, bagno e centrale termica; al piano primo da tre camere da letto ognuna con bagno annesso di cui una con poggiolo e guardaroba.


22REB è a disposizione per valutare come la nostra esperienza potrà favorirti nel realizzare il tuo miglior investimento.


L'immobile è oggetto di vendita giudiziaria.

22REB non si occupa di attività di intermediazione imm. di cui alla legge 39/89.
 Per motivi di privacy la foto dell'immobile/terreno è indicativa ma non esaustiva.
Caratteristiche principali
Codice
GM3520/25
Città
Roncade (Musestre)
Categoria
Villa Bifamiliare
Prezzo
283.500 €
Locali
10
Camere
3
Bagni
4
Mq
251
Classe energetica
In fase di valutazione
Mappa
Via Principe , Roncade (TV)
Condividi su
Cookie preference