Italiano
English
Español
العربية
1.082.250 €

Complesso immobiliare a Cordignano (TV)

Azienda Agricola in vendita • Cordignano - Strada del Palu'
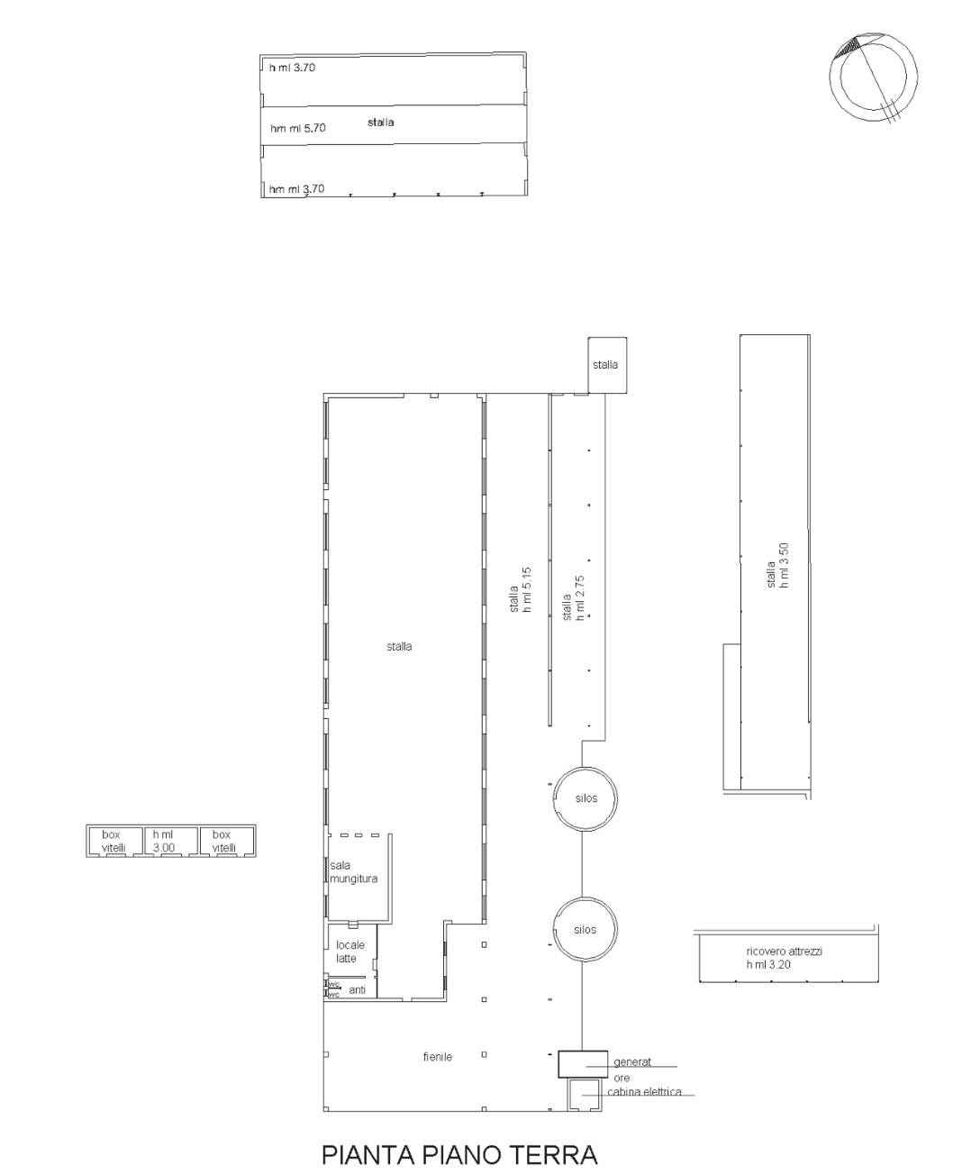
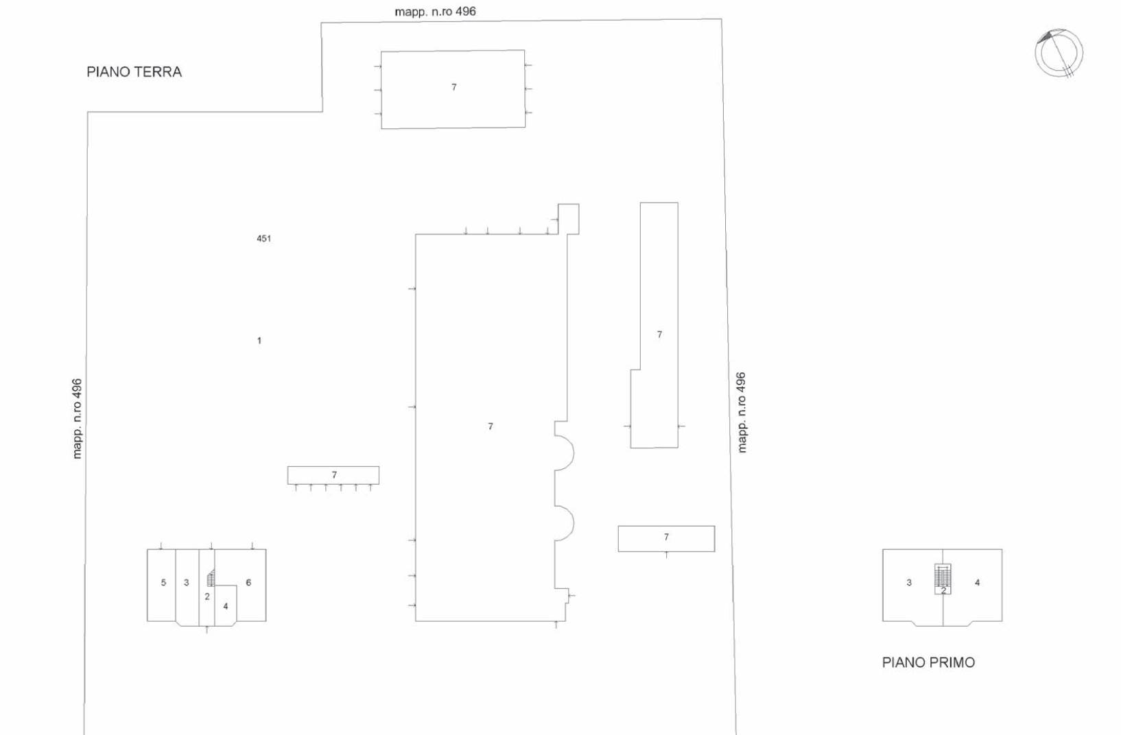
Compendio immobiliare in accentuato grado di vetustà e rovina sito in Comune di Cordignano (TV) in via Palù, composto da abitazione al piano primo con annessi ripostiglio e cantina al piano terra; abitazione al piano primo con annessa cantina al piano terra; due garage al piano terra; pertinenziale atrio e vano scala; su cinque distinti corpi di fabbrica: ricovero attrezzi, fienile e stalle con locali accessori al piano terra; pertinenziale area scoperta esclusiva di mq. 9.960; su due ulteriori e distinti corpi di fabbrica: serre con locali accessori ed annessa area scoperta esclusiva di mq. 7.540; ulteriore area scoperta di complessivi mq. 12.737.


22REB è a disposizione per valutare come la nostra esperienza potrà favorirti nel realizzare il tuo miglior investimento.


L'immobile è oggetto di vendita giudiziaria.

22REB non si occupa di attività di intermediazione imm. di cui alla legge 39/89.
 Per motivi di privacy la foto dell'immobile/terreno è indicativa ma non esaustiva.
Caratteristiche principali
Codice
GM3536/25
Città
Cordignano
Categoria
Azienda Agricola
Prezzo
1.082.250 €
Locali
11,5
Mq
2759
Box
2
Mq Box
143
Classe energetica
In fase di valutazione
Mappa
Strada del Palu' , Cordignano (TV)
Condividi su
Cookie preference