Italiano
English
Español
العربية
510.000 €

Compendio immobiliare a Paese (TV)

Capannone in vendita • Paese - Via Gasparini
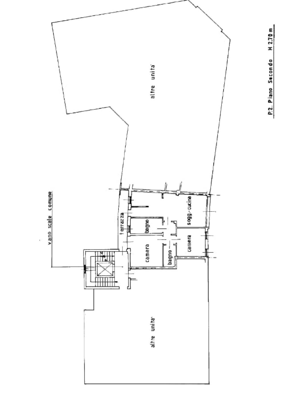
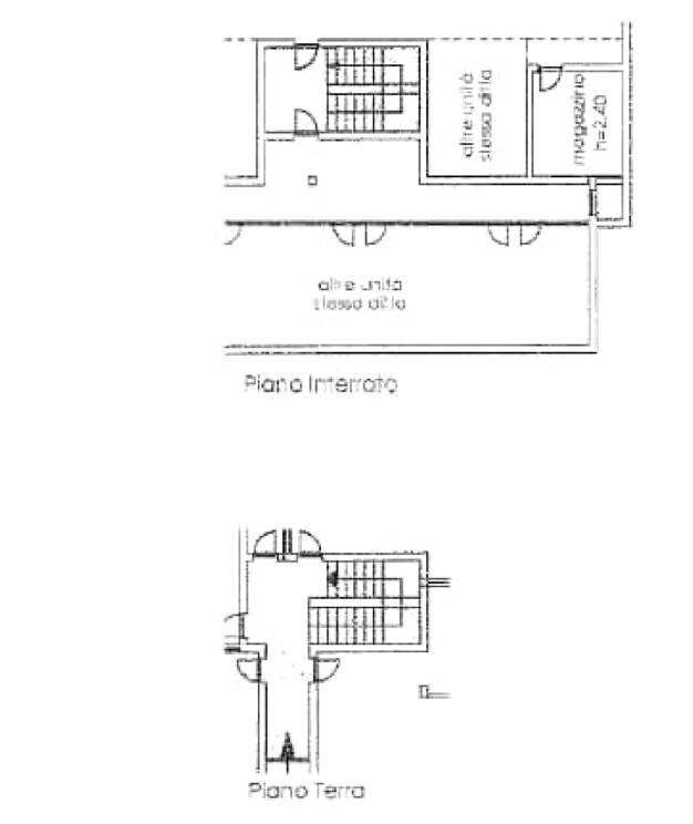
Compendio immobiliare composto da numero nove unità immobiliari, le quali sono ubicate nel Comune di Paese (TV) - capoluogo e frazioni Porcellengo e Padernello - oltre ad un piccolo terreno sito n Siror (TN). Comprende una porzione di capannone (immobile libero) su due livelli per una superficie commerciale di 383,50 metri quadri, presente impianto fotovoltaico in copertura (~11 kWp). Ufficio con garage per una superficie commerciale di 51 metri quadri ed è occupato con regolare contratto di locazione. Appartamento con garage sito in Condominio "La Posta" per una superficie commerciale di 105,50 metri quadri, immobile libero. Magazzino interrato per una superficie commerciale di 12 metri quadri, immobile libero. Terreni edificabili siti a San Gottardo/Padernello per una superficie catastale complessiva di 1.502 metri quadri. Appartamento con posto auto in corso di definizione, libero allo stato grezzo avanzato sito a Paese (TV) per una superficie commerciale di 114,50 metri quadri. Terreno edificabile sito a Porcellengo per una superficie catastale complessiva di 2.529 metri quadri. Scoperto urbanizzato sito a Padernello (TV). Terreno agricolo-prato/pascolo sito a Siror (TN) per una superficie complessiva di 130 metri quadri. Presente anche componente mobiliare.


22REB è a disposizione per valutare come la nostra esperienza potrà favorirti nel realizzare il tuo miglior investimento.


L'immobile è oggetto di vendita giudiziaria.

22REB non si occupa di attività di intermediazione imm. di cui alla legge 39/89.
 Per motivi di privacy la foto dell'immobile/terreno è indicativa ma non esaustiva.
Caratteristiche principali
Codice
GM3590/25
Città
Paese
Categoria
Capannone
Prezzo
510.000 €
Locali
1
Mq
6014,5
Classe energetica
In fase di valutazione
Mappa
Via Gasparini , Paese (TV)
Condividi su
Cookie preference