Italiano
English
Español
العربية
85.500 €

Villetta a schiera a Codevigo (PD)

Villetta schiera in vendita • Codevigo - Via Castelcaro Alto
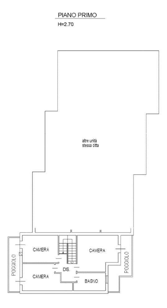
Villetta a schiera su due livelli con giardino pertinenziale e box auto al piano terra situata a Codevigo (PD) in via Castelcaro, composto al piano terra da un ingresso, un soggiorno con angolo cottura, un bagno e vano scala; al piano primo da vano scala, disimpegno, bagno, tre camere da letto e due poggioli.


22REB è a disposizione per valutare come la nostra esperienza potrà favorirti nel realizzare il tuo miglior investimento.


L'immobile è oggetto di vendita giudiziaria.

22REB non si occupa di attività di intermediazione imm. di cui alla legge 39/89.
 Per motivi di privacy la foto dell'immobile/terreno è indicativa ma non esaustiva.
Caratteristiche principali
Codice
GM3591/25
Città
Codevigo
Categoria
Villetta schiera
Prezzo
85.500 €
Locali
5
Camere
3
Bagni
2
Mq
119,95
Box
1
Mq Box
10
Classe energetica
In fase di valutazione
Mappa
Via Castelcaro Alto , Codevigo (PD)
Condividi su
Cookie preference