Italiano
English
Español
العربية
173.000 €

Villetta a schiera ad Istrana (TV)

Villetta schiera in vendita • Istrana - Via Storti
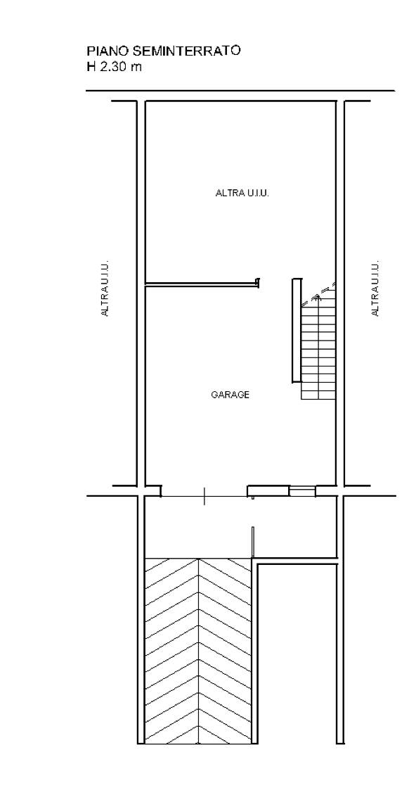
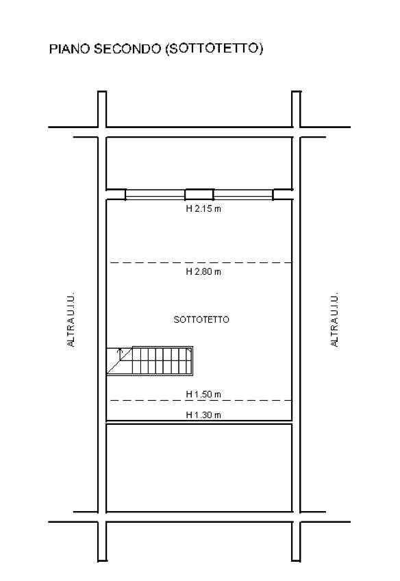
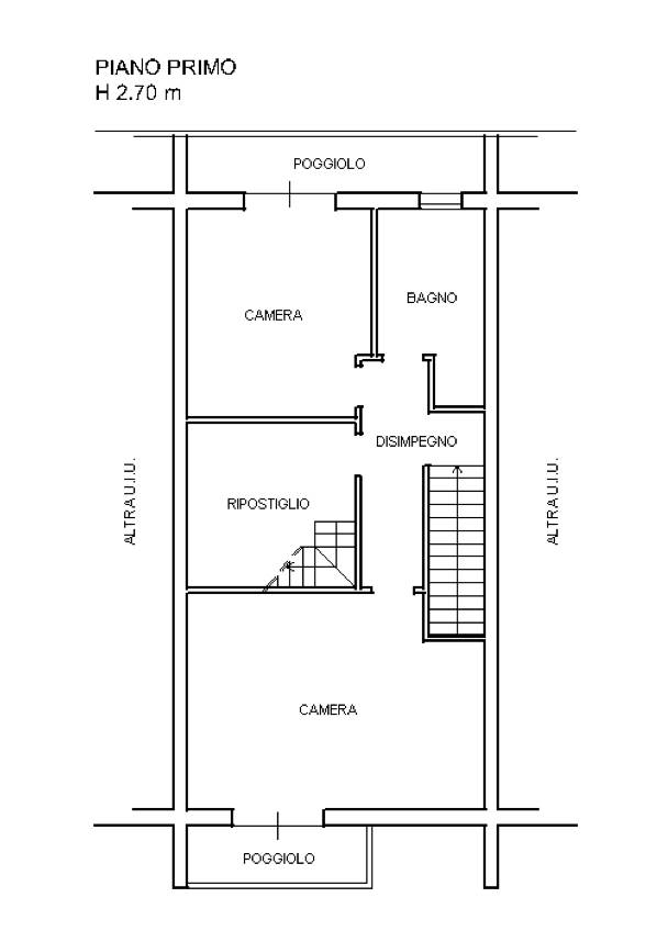
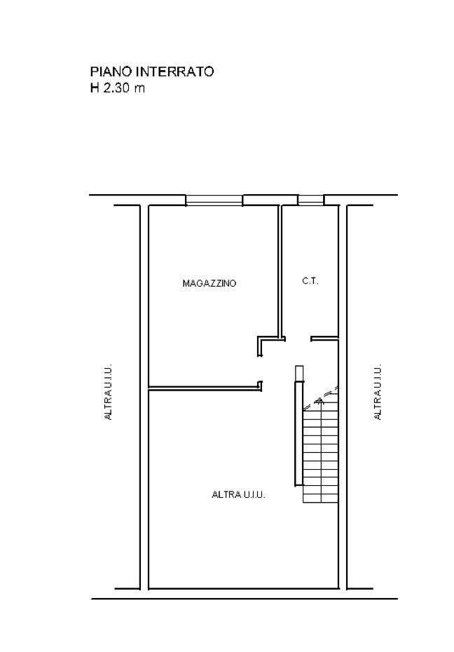
Villetta a schiera con annessa area scoperta di circa mq. 103 ed autorimessa situata nel Comune di Istrana (TV), in via Storti, composta al piano interrato da garage, magazzino e centrale termica; al piano terra da un soggiorno, una cucina, bagno e terrazze; al piano primo da due camere da letto, bagno, ripostiglio e disimpegno; al piano secondo da sottotetto ad uso magazzino.


22REB è a disposizione per valutare come la nostra esperienza potrà favorirti nel realizzare il tuo miglior investimento.


L'immobile è oggetto di vendita giudiziaria.

22REB non si occupa di attività di intermediazione imm. di cui alla legge 39/89.
 Per motivi di privacy la foto dell'immobile/terreno è indicativa ma non esaustiva.
Caratteristiche principali
Codice
GM3595/25
Città
Istrana
Categoria
Villetta schiera
Prezzo
173.000 €
Locali
7,5
Camere
2
Bagni
2
Mq
229
Box
1
Mq Box
31
Classe energetica
In fase di valutazione
Mappa
Via Storti , Istrana (TV)
Condividi su
Cookie preference