Italiano
English
Español
العربية
441.750 €

Complesso immobiliare a Gazzo (PD)

Villa in vendita • Gazzo - Via Pastoreria
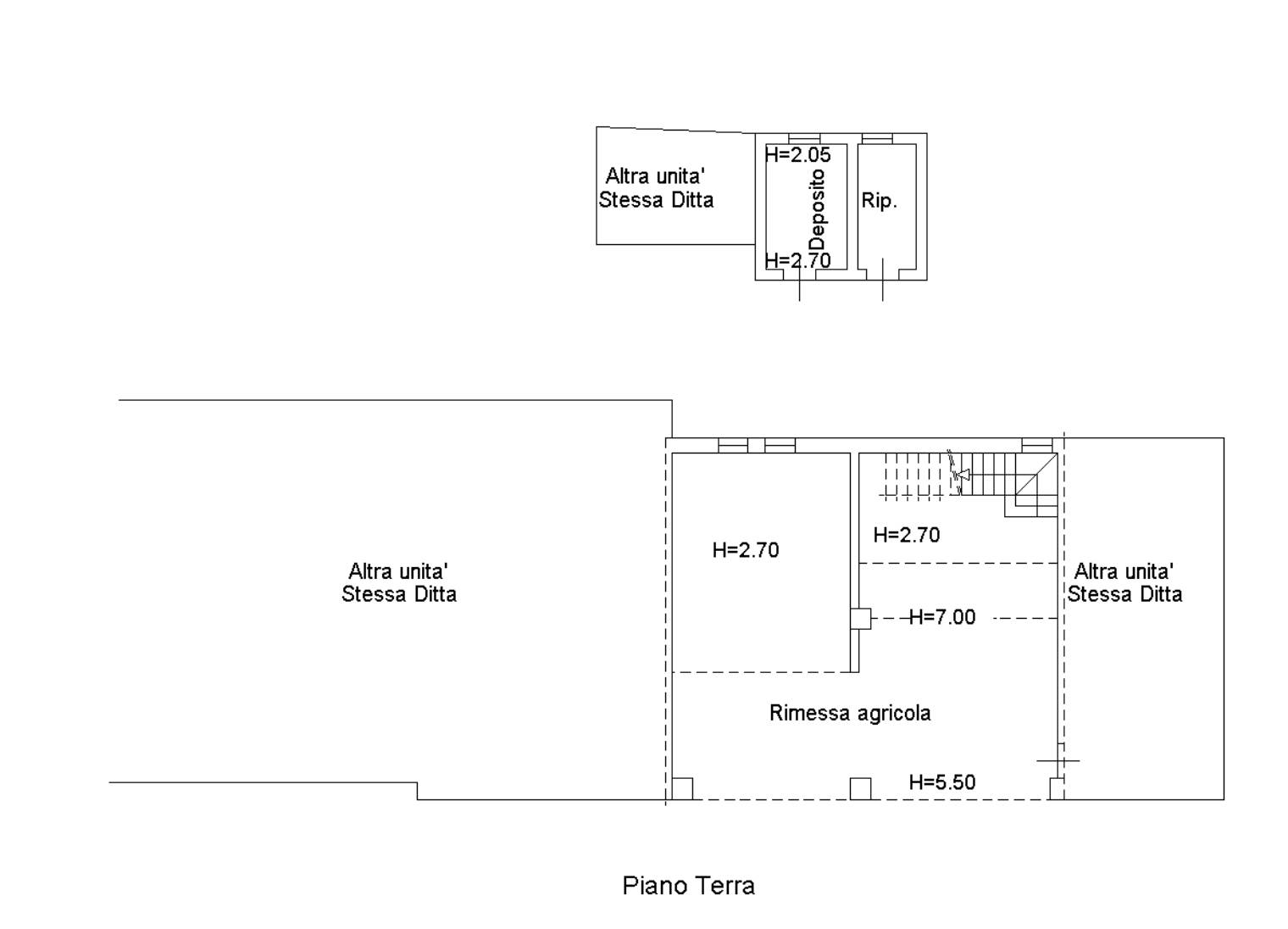
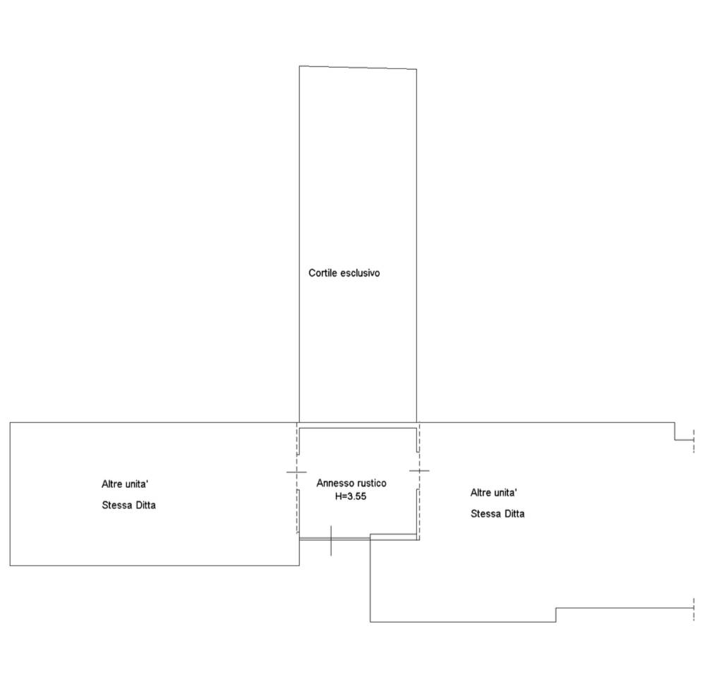
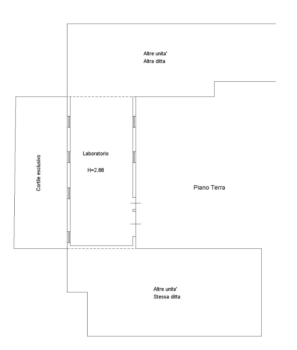
Complesso immobiliare situato a Gazzo (PD) in via Pastoreria, costituito da una villetta singola di mq 227 al piano terra e primo con garage e cortile di mq
440 e da un'abitazione accostata al piano terra e primo di mq 177 con cortile di circa 238 mq e autorimessa di mq 26. Porzione di laboratorio di mq 91 con cortile di 425 mq, porzione di laboratorio di mq 91 con cortile di 77 mq, annesso rustico di mq 31 circa con cortile di mq 106, rimessa agricola e legnaia a est dell'abitazione e terreno a giardino comune di mq 1.295.

Stato di occupazione: Immobile libero.


22REB è a disposizione per valutare come la nostra esperienza potrà favorirti nel realizzare il tuo miglior investimento.


L'immobile è oggetto di vendita giudiziaria.

22REB non si occupa di attività di intermediazione imm. di cui alla legge 39/89.
 Per motivi di privacy la foto dell'immobile/terreno è indicativa ma non esaustiva.
Caratteristiche principali
Codice
GM3599/25
Città
Gazzo
Categoria
Villa
Prezzo
441.750 €
Locali
19,5
Mq
467
Classe energetica
In fase di valutazione
Mappa
Via Pastoreria , Gazzo (PD)
Condividi su
Cookie preference