Italiano
English
Español
العربية
470.250 €

Complesso immobiliare a Marostica (VI)

Negozio in vendita • Marostica - Via Marsan
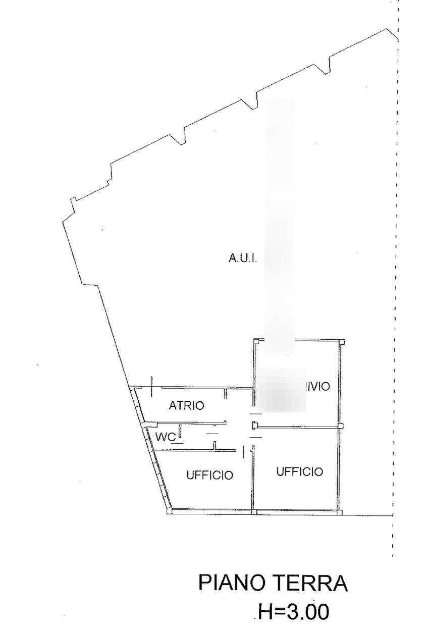
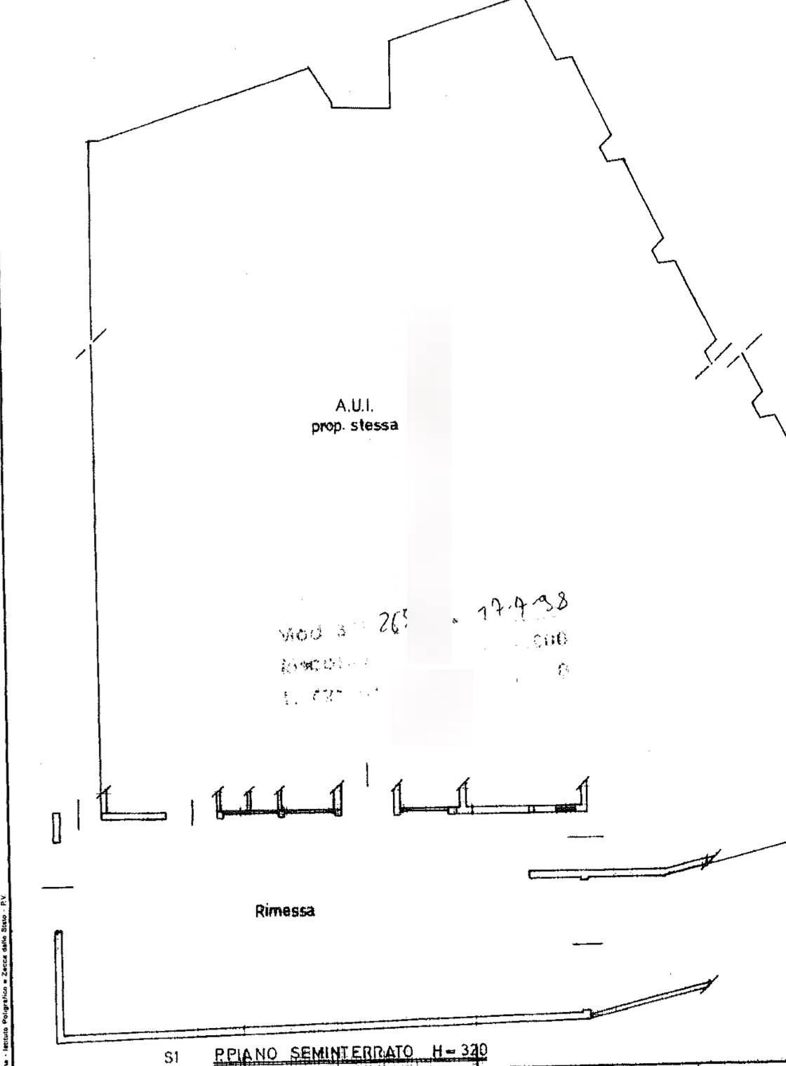
Complesso immobiliare composto da diverse unità di tipo commerciale, direzionale, abitativo, autorimesse situato a Marostica (VI) in via Marsan.
Il fabbricato si sviluppa su tre piani di cui due fuori terra e uno interrato e si sviluppa in questo modo: al piano terra sono ubicati i negozi, un ufficio, locali commerciali, oltre agli ingressi per le altre unità; al piano interrato sono presenti le autorimesse e una parte dei locali commerciali; al piano primo un appartamento e un locale deposito relativo ad uno dei negozi al piano oltre terrazze.


22REB è a disposizione per valutare come la nostra esperienza potrà favorirti nel realizzare il tuo miglior investimento.


L'immobile è oggetto di vendita giudiziaria.

22REB non si occupa di attività di intermediazione imm. di cui alla legge 39/89.
 Per motivi di privacy la foto dell'immobile/terreno è indicativa ma non esaustiva.
Caratteristiche principali
Codice
GM3604/25
Città
Marostica
Categoria
Negozio
Prezzo
470.250 €
Locali
1
Mq
882
Classe energetica
In fase di valutazione
Mappa
Via Marsan , Marostica (VI)
Condividi su
Cookie preference