Italiano
English
Español
العربية
205.376 €

Villa bifamiliare a Venezia (VE)

Villa Bifamiliare in vendita • Venezia - San Piero in Volta
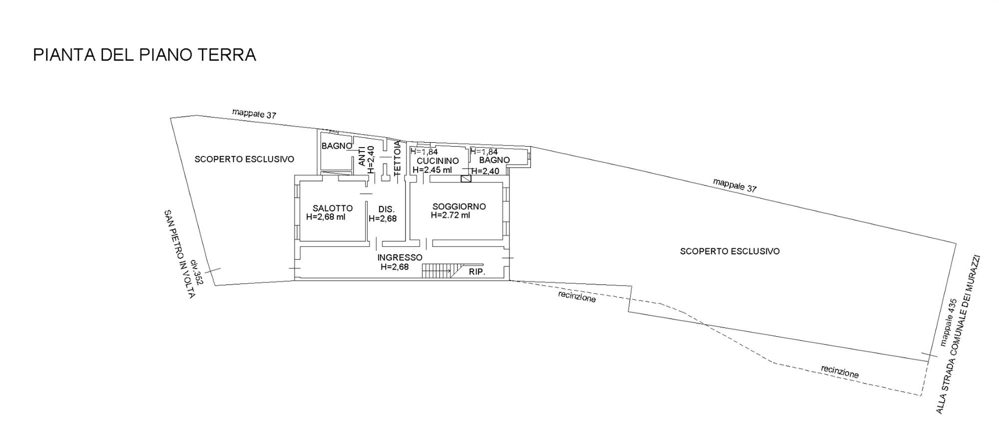
Porzione di fabbricato bifamiliare allo stato grezzo avanzato che si sviluppa su tre livelli, situato nell'isola di Pellestrina (VE), comprende altresì due scoperti esclusivi. Abitazione composta al piano terra da un ingresso, soggiorno, salotto, una cucina, due bagni e tettoia; al piano primo da tre camere da letto; al piano secondo da una camera da letto.


22REB è a disposizione per valutare come la nostra esperienza potrà favorirti nel realizzare il tuo miglior investimento.


L'immobile è oggetto di vendita giudiziaria.

22REB non si occupa di attività di intermediazione imm. di cui alla legge 39/89.
 Per motivi di privacy la foto dell'immobile/terreno è indicativa ma non esaustiva.
Caratteristiche principali
Codice
GM3619/25
Città
Venezia
Categoria
Villa Bifamiliare
Prezzo
205.376 €
Locali
9,5
Camere
4
Bagni
2
Mq
218
Classe energetica
In fase di valutazione
Mappa
San Piero in Volta , Venezia (VE)
Condividi su
Cookie preference