Italiano
English
Español
العربية
529.800 €

Villa storica a Rosà (VI)

Villa in vendita • Rosà - Via Mazzini
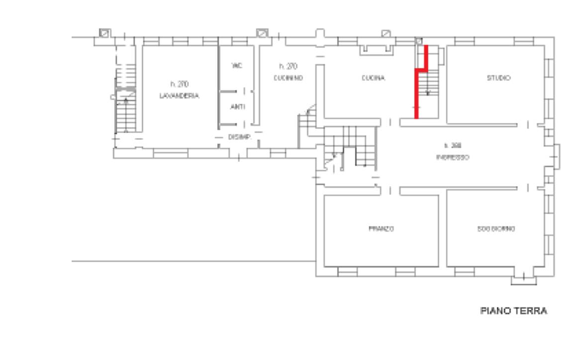
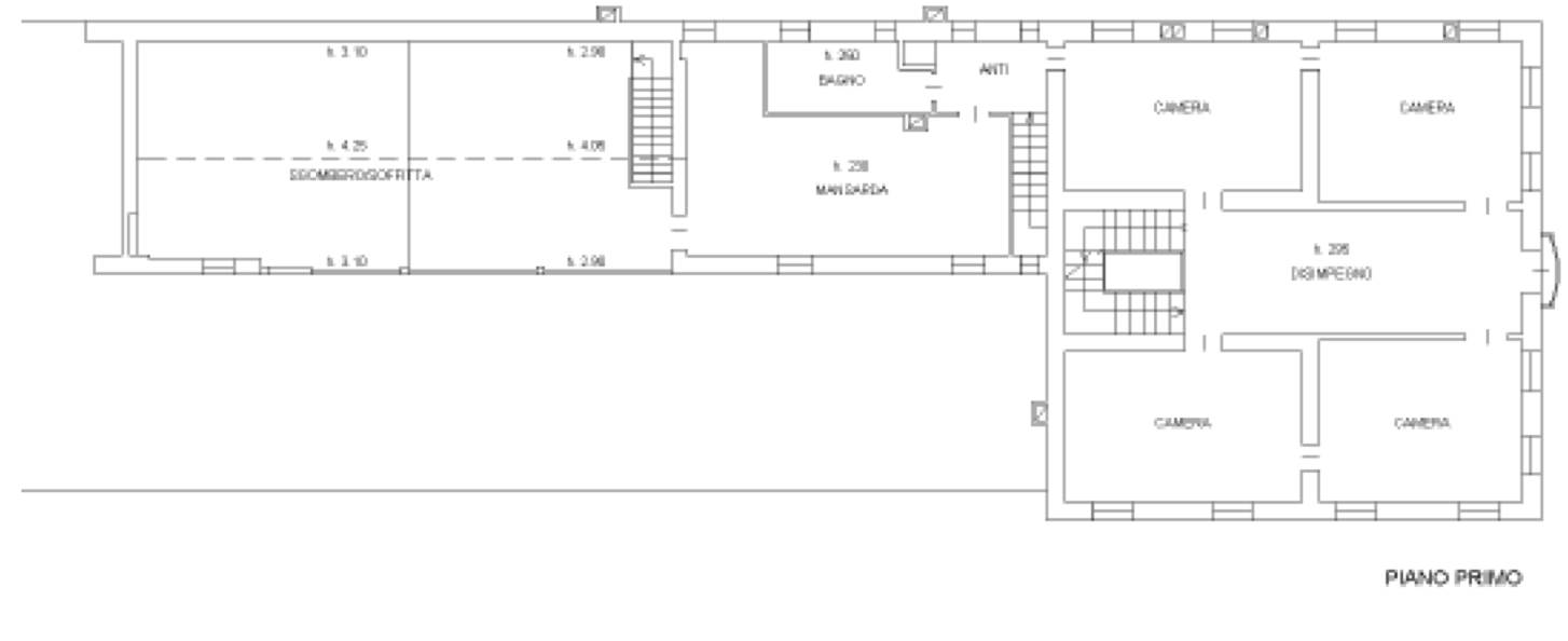
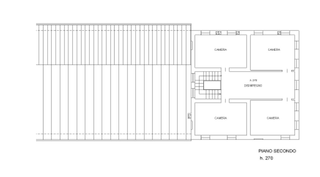
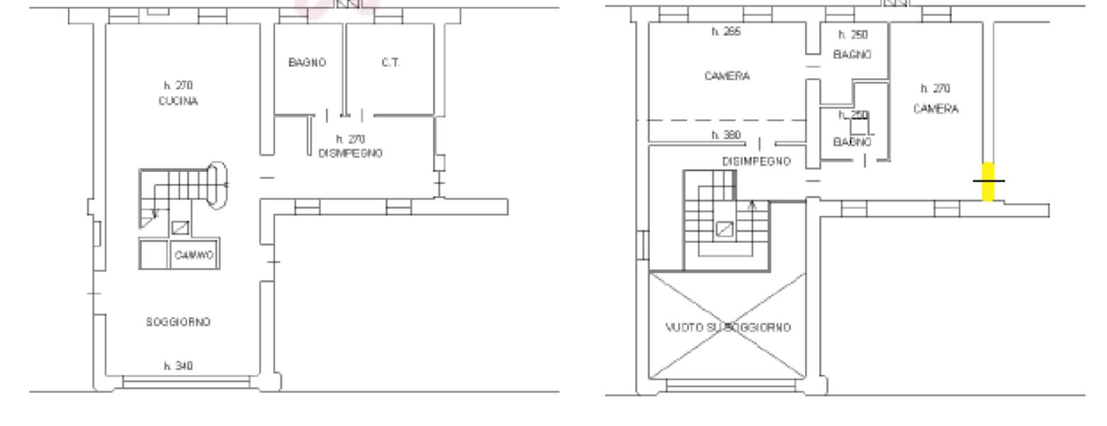
Villa la cui costruzione originaria è collocabile a meta del 1800 con grande parco situata a Rosà (VI) in via Mazzini, costituita da due corpi di fabbrica, l’abitazione e la barchessa in aderenza. L'abitazione-casa padronale si sviluppa su tre livelli con salone centrale, cucina, studio, pranzo e soggiorno al piano terra e salone centrale e quattro camere sia al piano primo che al
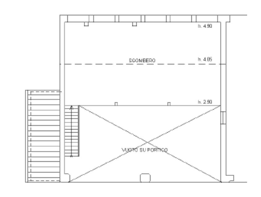
piano secondo, oltre interrato con cantina e ripostiglio. La parte di barchessa centrale, al piano terra, è stata trasformata in laboratorio e il fienile al
piano primo è utilizzato come soffitta-magazzino. Un’altra porzione della barchessa è stata ristrutturata con la realizzazione di un appartamento su due livelli, sono presenti al piano terra un soggiorno e cucina con un importante camino centrale e scala che corre attorno alla canna fumaria, disimpegno,
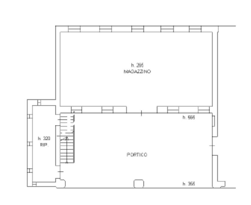
bagno e centrale termica-lavanderia e, al piano superiore, disimpegno su soppalco, due camere e due bagni di cui uno con lucernario. L’ultima porzione della barchessa è adibita a deposito-magazzino su due livelli.


22REB è a disposizione per valutare come la nostra esperienza potrà favorirti nel realizzare il tuo miglior investimento.


L'immobile è oggetto di vendita giudiziaria.

22REB non si occupa di attività di intermediazione imm. di cui alla legge 39/89.
 Per motivi di privacy la foto dell'immobile/terreno è indicativa ma non esaustiva.
Caratteristiche principali
Codice
GM3645/25
Città
Rosà
Categoria
Villa
Prezzo
529.800 €
Locali
25
Mq
1475
Classe energetica
In fase di valutazione
Mappa
Via Mazzini , Rosà (VI)
Condividi su
Cookie preference